MÃ BẢN VẼ
43449

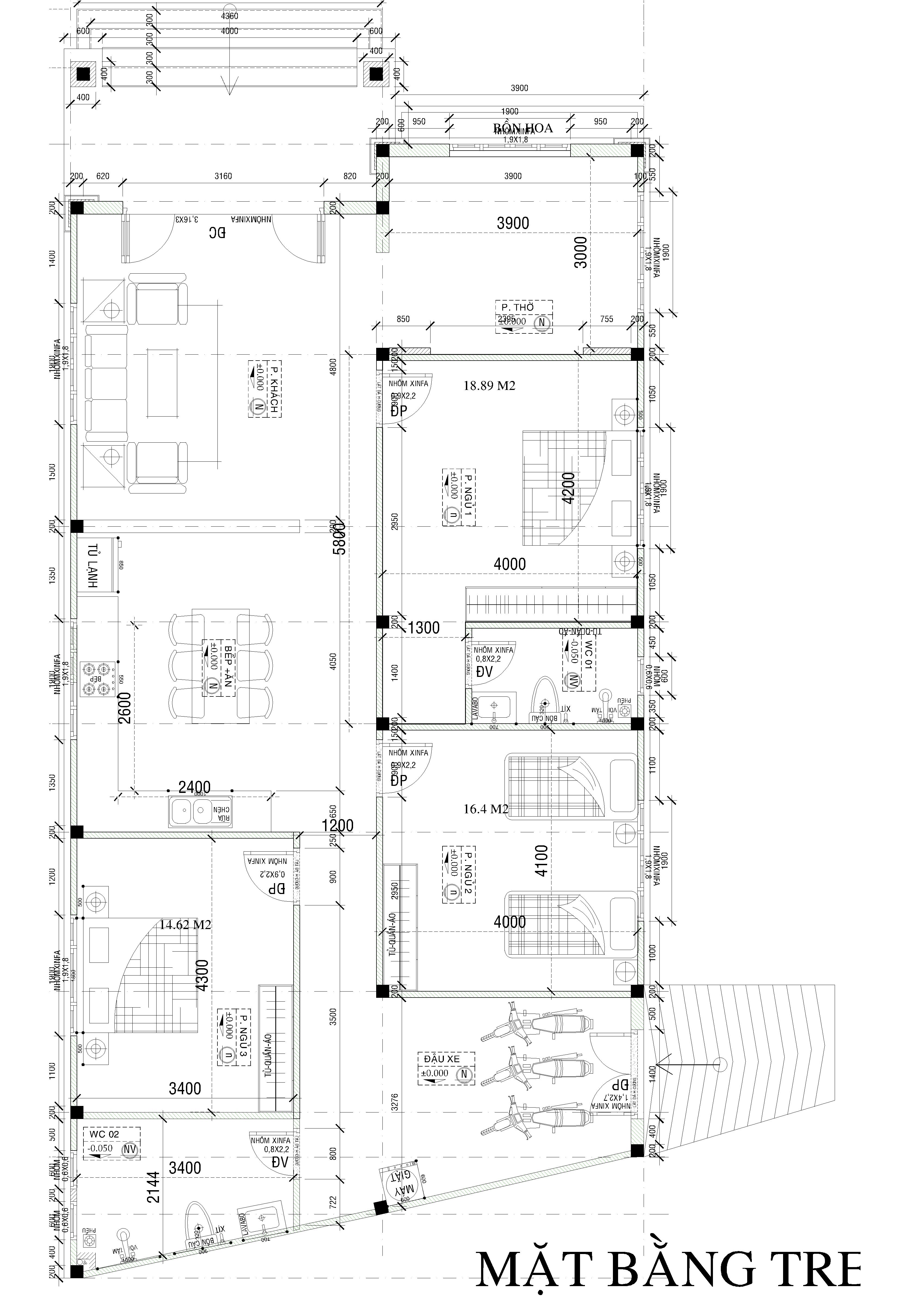
Full bản vẽ nhà biệt thự mái nhật 9x17.8m

  (1 Nhận xét)     Viết đánh giá        0     1     624

FULL BẢN VẼ KTTC 9X17.8 MÁI NHẬT BAO GỒM KIẾN TRUC + KẾT CẤU ĐIỆN NƯỚC + SÂN + HÀNG RÀO + NHÀ ĐỂ XE

Ngày đăng: 08/1/2024
File download: TAI LEN.dwg
Dung lượng file: 7.31 MB
Phong cách: Hiện đại
Kích thước: Rộng 9m, Dài 17,8m, DT 160,2m2
CÔNG CỤ THIẾT KẾ:
Autocad
Sketchup
3D Max
Revit
Khác...
CÁC HẠNG MỤC CỦA BẢN VẼ:
Kiến trúc
Kết cấu
Điện
Nước
PCCC
Phối cảnh
Dự toán
Tài liệu
Khác...

NGƯỜI ĐĂNG
(Hạng vàng)
Xem trang
bản vẽ nhà
Bản vẽ
18
bộ sưu tập bản vẽ nhà
Bộ sưu tập
0
đánh giá mẫu bản vẽ
Đánh giá (24)
5/5
ngày tham gia bản vẽ nhà đẹp
Ngày tham gia
6/11/2022

Mô tả chi tiết

full hồ sơ kỹ thuật thi công nhà biệt thự mái nhật 9x17.8 đầy đủ các hồ sơ đầy đủ nhất bao gồm:

+ kiến truc

+ kết cấu

+ điện nước

+ sân

+ hàng rào

+ nhà để xe

Bình luận (0)


Đánh giá (1)

ĐÁNH GIÁ TRUNG BÌNH
5/5

(1 Nhận xét)
Bản vẽ rất tốt (1)
Bản vẽ tốt (0)
Bản vẽ rất hay (0)
Bản vẽ hay (0)
Bình thường (0)
Chia sẻ nhận xét về bản vẽ
 Viết nhận xét của bạn
Nhân Hiếu
Thời gian 14:13
20/2/2024
Bản vẽ rất tốt   
 Đã mua bản vẽ tại Banvenhadep.vn
Bản vẽ thiết tốt thích hợp để tham khảo
HỖ TRỢ TRỰC TUYẾN