MÃ BẢN VẼ
53436
Full thiết kế nhà tân cổ điển 2 tầng 1 tum kích thước thiết kế 5.5x17.3m
Full file cad nhà 2 tầng 1 tum tân cổ điển 5.5x17.m, thiết kế nhà ống 2 tầng tân cổ điển đẹp mong anh chị ủng hộ
Ngày đăng: 22/2/2025
File download:
BAN VE.dwg
Dung lượng file:
4.9 MB
Phong cách: Hiện đại
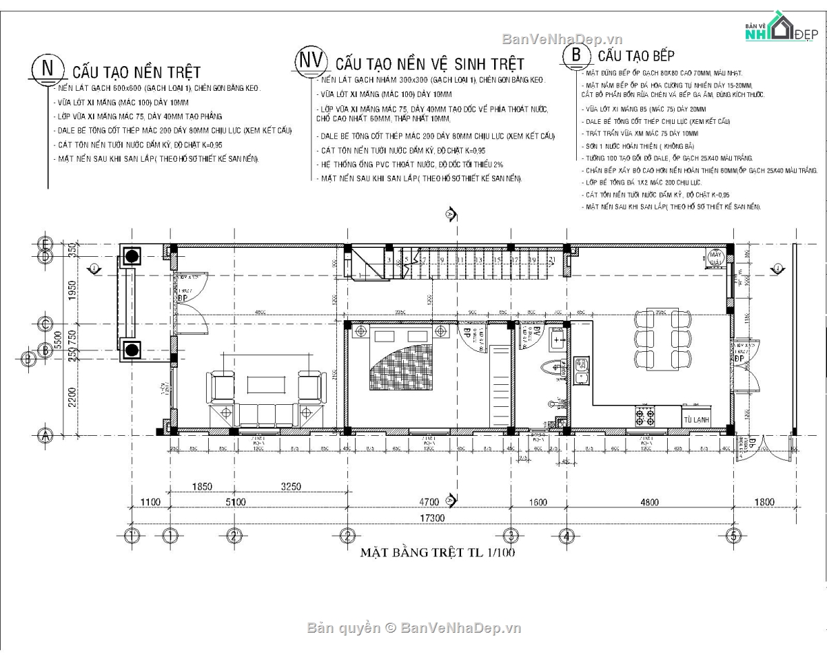
Kích thước: Rộng 5,5m, Dài 17,3m, DT 95,15m2
CÔNG CỤ THIẾT KẾ:

Autocad

Sketchup

3D Max

Revit

Khác...
CÁC HẠNG MỤC CỦA BẢN VẼ:

Kiến trúc

Kết cấu

Điện

Nước

PCCC

Phối cảnh

Dự toán

Tài liệu

Khác...
NGƯỜI ĐĂNG
Bản vẽ
18
Bộ sưu tập
0
Đánh giá (24)
5/5
Ngày tham gia
6/11/2022
Mô tả chi tiết
Full file cad kỹ thuật thi công nhà 2 tầng tân cổ điển 5.5x17.3m đầy đủ các file cad đầy đủ nhất bao gồm:
+ kiến trúc
+ kết cấu
+ điện nước
công năng:
tầng 1: 1 khách, 1 bếp, 1 ngủ, 1 vệ sinh chung
tầng 2: 3 ngủ, 1 thờ
bản vẽ chỉ có 1 file cad mb,mđ,mc, kết cấu, mặt bằng cấp điện các tầng và cấp thoát nước các tầng
Bình luận (0)
Đánh giá (1)
ĐÁNH GIÁ TRUNG BÌNH
5/5
(
1 Nhận xét)
Bản vẽ rất tốt (1)
Bản vẽ tốt (0)
Bản vẽ rất hay (0)
Bản vẽ hay (0)
Bình thường (0)
Bản vẽ rất tốt
Đã mua bản vẽ tại Banvenhadep.vn
Bản vẽ thiết tốt thích hợp để tham khảo