MÃ BẢN VẼ
51915
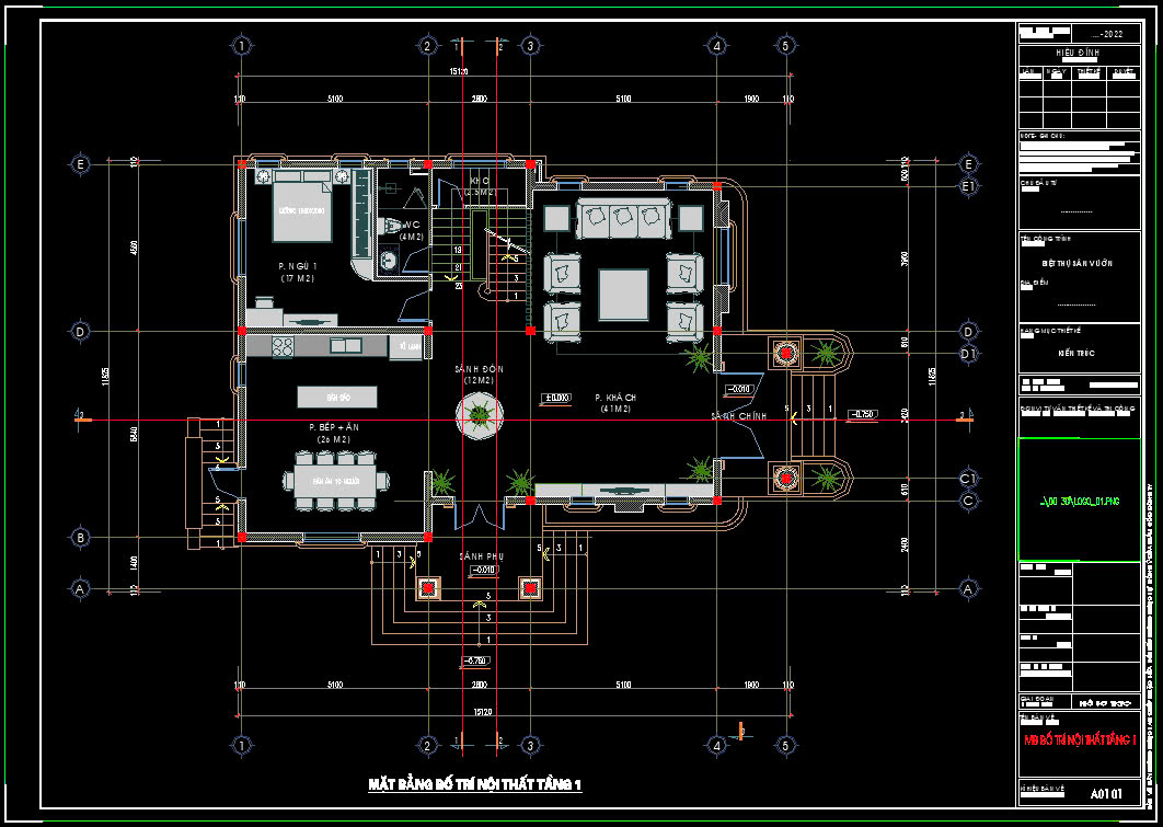
Hồ sơ bản vẽ nhà 2 tầng mái nhật (11.8x15.1m)
(
1 Nhận xét)
Viết đánh giá
Bình luận: 0
Download: 0
Lượt xem: 256
Hồ sơ file cad nhà 2 tầng mái nhật (11.8x15.1m) gồm file cad kiến trúc, kết cấu, điện nước và ảnh file phối cảnh 3d
Ngày đăng: 29/11/2024
File download:
Hồ sơ thiết kế nhà 2 tầng mái nhật (11,8mx15,1m).rar
Dung lượng file:
16.1 MB
Phong cách: Tân cổ điển
Kích thước: Rộng 11,8m, Dài 15,1m, DT 178,18m2
CÔNG CỤ THIẾT KẾ:

Autocad

Sketchup

3D Max

Revit

Khác...
CÁC HẠNG MỤC CỦA BẢN VẼ:

Kiến trúc

Kết cấu

Điện

Nước

PCCC

Phối cảnh

Dự toán

Tài liệu

Khác...
NGƯỜI ĐĂNG
Bản vẽ
47
Bộ sưu tập
0
Đánh giá (77)
5/5
Ngày tham gia
16/11/2024
Mô tả chi tiết
Hồ sơ file cad nhà 2 tầng mái nhật (11,8mx15,1m) bao gồm:
- Ảnh file phối cảnh 3d công trình
- File cad file cad kiến trúc
- File cad file cad kết cấu
- File cad file cad điện nước
Bình luận (0)
Đánh giá (1)
ĐÁNH GIÁ TRUNG BÌNH
5/5
(
1 Nhận xét)
Bản vẽ rất tốt (1)
Bản vẽ tốt (0)
Bản vẽ rất hay (0)
Bản vẽ hay (0)
Bình thường (0)
Bản vẽ rất tốt
Đã mua bản vẽ tại Banvenhadep.vn
Bản vẽ thiết tốt thích hợp để tham khảo