MÃ BẢN VẼ
51964
Hồ sơ mẫu nhà cấp 4 mái nhật 7.8x15.8m
(
1 Nhận xét)
Viết đánh giá
Bình luận: 0
Download: 1
Lượt xem: 186
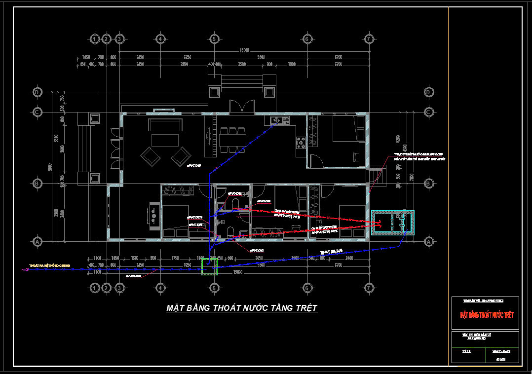
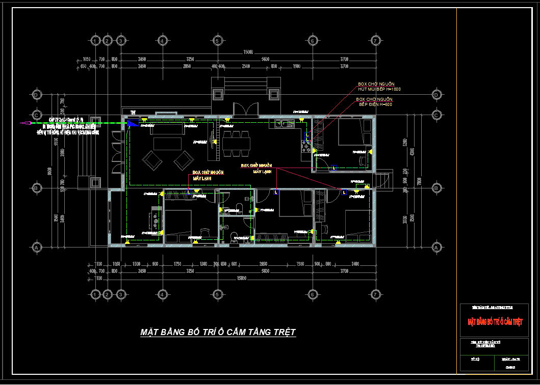
Hồ sơ thiết kế nhà cấp 4 mái nhật (7.8x15.8m) full thiết kế kiến trúc, kết cấu, điện nước và ảnh file phối cảnh 3dmax
Ngày đăng: 02/12/2024
File download:
Hồ sơ thiết kế nhà 1 tầng mái nhật (7.8mx15.8m).rar
Dung lượng file:
30 MB
Phong cách: Hiện đại
Kích thước: Rộng 7,8m, Dài 15,8m, DT 123,24m2
CÔNG CỤ THIẾT KẾ:

Autocad

Sketchup

3D Max

Revit

Khác...
CÁC HẠNG MỤC CỦA BẢN VẼ:

Kiến trúc

Kết cấu

Điện

Nước

PCCC

Phối cảnh

Dự toán

Tài liệu

Khác...
NGƯỜI ĐĂNG
Bản vẽ
47
Bộ sưu tập
0
Đánh giá (80)
5/5
Ngày tham gia
16/11/2024
Mô tả chi tiết
Hồ sơ thiết kế nhà cấp 4 mái nhật (7.8x15.8m) bao gồm:
- Ảnh file phối cảnh 3dmax công trình
- Thiết kế thiết kế kiến trúc
- Thiết kế thiết kế kết cấu
- Thiết kế thiết kế điện nước
Bình luận (0)
Đánh giá (1)
ĐÁNH GIÁ TRUNG BÌNH
5/5
(
1 Nhận xét)
Bản vẽ rất tốt (1)
Bản vẽ tốt (0)
Bản vẽ rất hay (0)
Bản vẽ hay (0)
Bình thường (0)
Bản vẽ rất tốt
Đã mua bản vẽ tại Banvenhadep.vn
Bản vẽ thiết tốt thích hợp để tham khảo