MÃ BẢN VẼ
60547

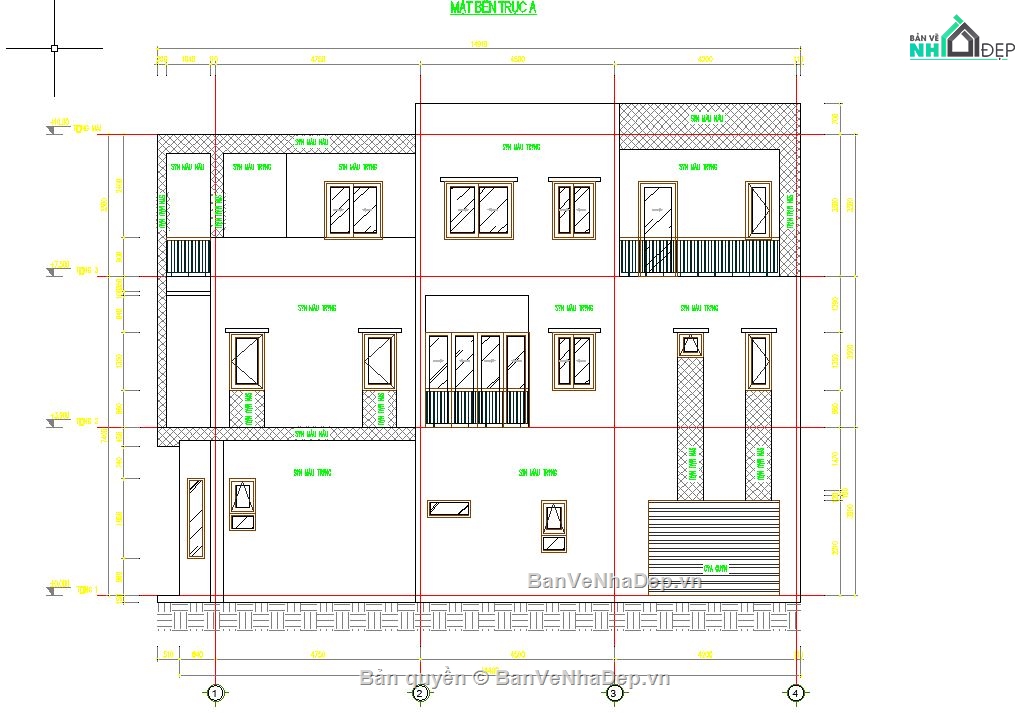
Hồ sơ mẫu nhà phố 3 tầng 5.5x18m

  (1 Nhận xét)     Viết đánh giá        0     0     64

Gửi đến file cad bản vẽ cad nhà ở kiến trúc, kết cấu cơ bản tới các bạn tham khảo.

Ngày đăng: 05/8/2025
File download: 5.5x18m.rar
Dung lượng file: 4,6 MB
Phong cách: Hiện đại
Kích thước: Rộng 5,5m, Dài 18m, DT 99m2
CÔNG CỤ THIẾT KẾ:
Autocad
Sketchup
3D Max
Revit
Khác...
CÁC HẠNG MỤC CỦA BẢN VẼ:
Kiến trúc
Kết cấu
Điện
Nước
PCCC
Phối cảnh
Dự toán
Tài liệu
Khác...

NGƯỜI ĐĂNG
(Hạng vàng)
Xem trang
bản vẽ nhà
Bản vẽ
314
bộ sưu tập bản vẽ nhà
Bộ sưu tập
0
đánh giá mẫu bản vẽ
Đánh giá (672)
5/5
ngày tham gia bản vẽ nhà đẹp
Ngày tham gia
12/4/2025

Mô tả chi tiết

mẫu nhà dân phố đang là thiết kế file cad thông dụng nhất hiện nay, đáp ứng gồm về cả chất lượng và tính thẩm mỹ. 

Bình luận (0)


Đánh giá (1)

ĐÁNH GIÁ TRUNG BÌNH
5/5

(1 Nhận xét)
Bản vẽ rất tốt (1)
Bản vẽ tốt (0)
Bản vẽ rất hay (0)
Bản vẽ hay (0)
Bình thường (0)
Chia sẻ nhận xét về bản vẽ
 Viết nhận xét của bạn
Vân Anh Đỗ
Thời gian 23:20
10/8/2025
Bản vẽ rất tốt   
 Đã đăng bản vẽ này
Bản vẽ thiết tốt thích hợp để tham khảo
HỖ TRỢ TRỰC TUYẾN