MÃ BẢN VẼ
60665
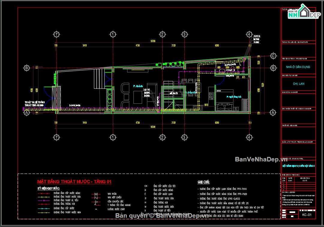
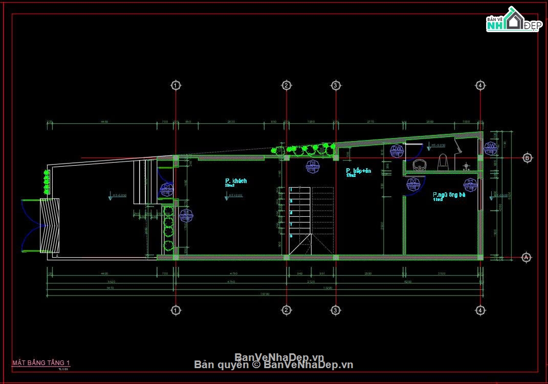
Hồ sơ thiết kế nhà phố 3 tầng hiện đại 4.5x18.7m
Hồ sơ thiết kế nhà phố 3 tầng hiện đại (4.5mx18.7m) đầy đủ bản vẽ kiến trúc, kết cấu, điện nước và ảnh phối cảnh 3D
Ngày đăng: 14/8/2025
File download:
Hồ sơ thiết kế nhà phố 3 tầng hiện đại (4,5x18,7m).rar
Dung lượng file:
7.4 MB
Phong cách: Hiện đại
Kích thước: Rộng 4,5m, Dài 18,7m, DT 84,1m2
CÔNG CỤ THIẾT KẾ:

Autocad

Sketchup

3D Max

Revit

Khác...
CÁC HẠNG MỤC CỦA BẢN VẼ:

Kiến trúc

Kết cấu

Điện

Nước

PCCC

Phối cảnh

Dự toán

Tài liệu

Khác...
NGƯỜI ĐĂNG
Bản vẽ
40
Bộ sưu tập
0
Đánh giá (70)
5/5
Ngày tham gia
16/11/2024
Mô tả chi tiết
Hồ sơ thiết kế nhà phố 3 tầng hiện đại (4.5mx18.7m) bao gồm:
- Ảnh phối cảnh 3D công trình
- Bản vẽ thiết kế kiến trúc
- Bản vẽ thiết kế kết cấu
- Bản vẽ thiết kế điện nước
Bình luận (0)
Đánh giá (1)
ĐÁNH GIÁ TRUNG BÌNH
5/5
(
1 Nhận xét)
Bản vẽ rất tốt (1)
Bản vẽ tốt (0)
Bản vẽ rất hay (0)
Bản vẽ hay (0)
Bình thường (0)
Bản vẽ rất tốt
Đã đăng bản vẽ này
Bản vẽ rất tốt và phù hợp để tham khảo