MÃ BẢN VẼ
63296

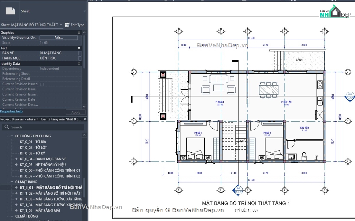
Mẫu revit biệt thự mái Nhật 2 tầng 8,5x13,5m (có trình bày dàn trang đầy đủ)

  (1 Nhận xét)     Viết đánh giá        0     0     11

Mẫu revit biệt thự mái Nhật 2 tầng 8,5x13,5m phong cách hiện đại pha chút tân cổ

Ngày đăng: 24/12/2025
File download: nhà 2 tầng mái Nhật 8.5x13.5m R 2024.rar
Dung lượng file: 179.98MB
Phong cách: Hiện đại
Kích thước: Rộng 8,5m, Dài 13,5m, DT 114,8m2
CÔNG CỤ THIẾT KẾ:
Autocad
Sketchup
3D Max
Revit
Khác...
CÁC HẠNG MỤC CỦA BẢN VẼ:
Kiến trúc
Kết cấu
Điện
Nước
PCCC
Phối cảnh
Dự toán
Tài liệu
Khác...

NGƯỜI ĐĂNG
(Hạng vàng)
Xem trang
bản vẽ nhà
Bản vẽ
193
bộ sưu tập bản vẽ nhà
Bộ sưu tập
0
đánh giá mẫu bản vẽ
Đánh giá (222)
5/5
ngày tham gia bản vẽ nhà đẹp
Ngày tham gia
2/4/2024

Mô tả chi tiết

Mẫu revit biệt thự mái Nhật 2 tầng 8,5x13,5m phong cách hiện đại pha chút tân cổ có trình bày dàn trang bổ chi tiết kiến trúc đầy đủ

Bình luận (0)


Đánh giá (1)

ĐÁNH GIÁ TRUNG BÌNH
5/5

(1 Nhận xét)
Bản vẽ rất tốt (1)
Bản vẽ tốt (0)
Bản vẽ rất hay (0)
Bản vẽ hay (0)
Bình thường (0)
Chia sẻ nhận xét về bản vẽ
 Viết nhận xét của bạn
TungARC
Thời gian 11:06
24/12/2025
Bản vẽ rất tốt   
 Đã mua bản vẽ tại Banvenhadep.vn
Bản vẽ rất tốt và phù hợp để tham khảo
HỖ TRỢ TRỰC TUYẾN