MÃ BẢN VẼ
61732
Full autocad Nhà phố 3 tầng 4,5x16m (đất 4.5x20,6m). Hồ sơ thi công kiến trúc, kết cấu, điện nước
(
1 Nhận xét)
Viết đánh giá
Bình luận: 1
Download: 0
Lượt xem: 117
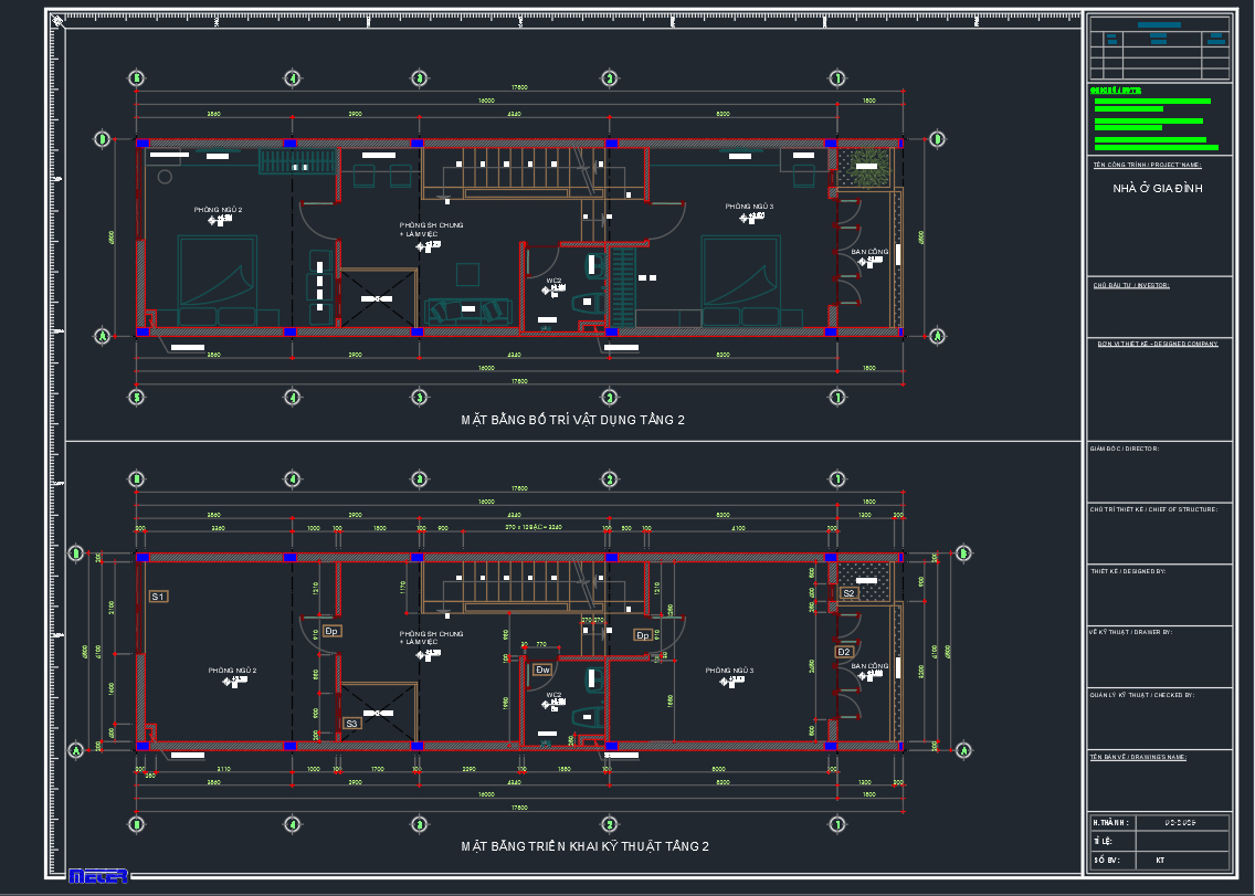
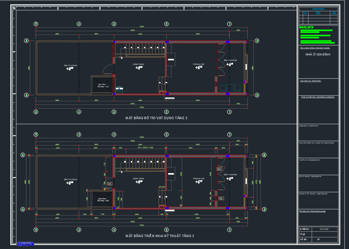
Nhà phố 3 tầng 4,5x16m (đất 4.5x20,6m) thiết kế theo xu hướng đẹp hiện đại có đầy đủ phối cảnh, bản vẽ kiến trúc, kết cấu và điện nước thi công.
Ngày đăng: 18/9/2025
File download:
NHÀ PHỐ 3 TẦNG 4,5x20 FULL HS THI CÔNG.rar
Dung lượng file:
2.9 MB
Phong cách: Hiện đại
Kích thước: Rộng 4,5m, Dài 20m, DT 90m2
CÔNG CỤ THIẾT KẾ:

Autocad

Sketchup

3D Max

Revit

Khác...
CÁC HẠNG MỤC CỦA BẢN VẼ:

Kiến trúc

Kết cấu

Điện

Nước

PCCC

Phối cảnh

Dự toán

Tài liệu

Khác...
NGƯỜI ĐĂNG
Bản vẽ
24
Bộ sưu tập
0
Đánh giá (61)
5/5
Ngày tham gia
18/9/2025
Mô tả chi tiết
Nhà phố 3 tầng thiết kế theo xu hướng đẹp hiện đại có đầy đủ phối cảnh, bản vẽ kiến trúc, kết cấu và điện nước thi công.
Có đầy đủ phối cảnh, bản vẽ autocad kiến trúc, kết cấu, điện nước thi công
Phù hợp tham khảo và phát triển
Phòng khách, bếp ăn, 3 phòng ngủ, phòng sinh hoạt chung, phòng thờ, sân phơi, sân thượng
Bình luận (1)
có mấy bản vẽ dành cho nhà 50m2 k b
Đánh giá (1)
ĐÁNH GIÁ TRUNG BÌNH
5/5
(
1 Nhận xét)
Bản vẽ rất tốt (1)
Bản vẽ tốt (0)
Bản vẽ rất hay (0)
Bản vẽ hay (0)
Bình thường (0)
Bản vẽ rất tốt
Đã mua bản vẽ tại Banvenhadep.vn
Bản vẽ rất tốt và phù hợp để tham khảo