MÃ BẢN VẼ
61766
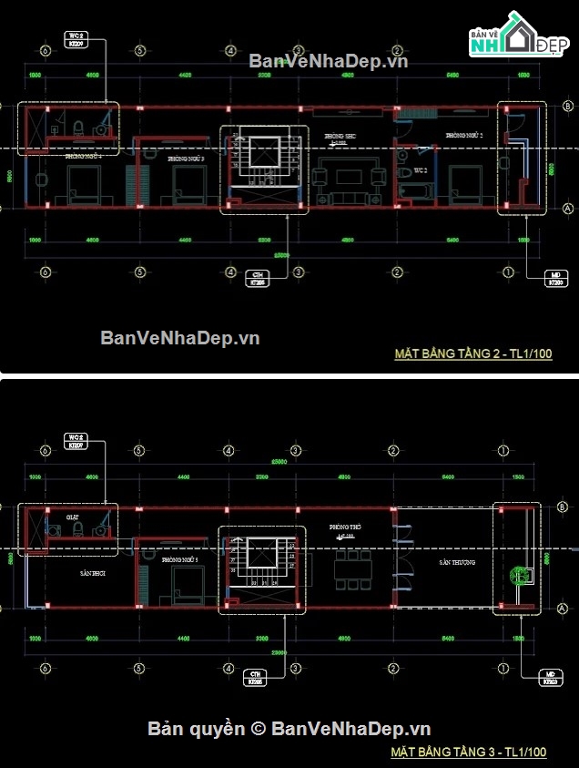
Nhà phố hiện đại 3 tầng 5x15m
(
1 Nhận xét)
Viết đánh giá
Bình luận: 0
Download: 1
Lượt xem: 162
Chia sẻ hồ sơ bản vẽ CAD thi công (full kiến trúc kết cấu điện nước) mẫu nhà phố mái thái hiện đại với quy mô 3 tầng kích thước 5x15m trên mảnh đất 5x20m.
Ngày đăng: 04/10/2025
File download:
Nhà phố 5x18mx3T (full).zip
Dung lượng file:
4.32 MB
Phong cách: Hiện đại
Kích thước: Rộng 5m, Dài 15m, DT 75m2
CÔNG CỤ THIẾT KẾ:

Autocad

Sketchup

3D Max

Revit

Khác...
CÁC HẠNG MỤC CỦA BẢN VẼ:

Kiến trúc

Kết cấu

Điện

Nước

PCCC

Phối cảnh

Dự toán

Tài liệu

Khác...
NGƯỜI ĐĂNG
Bản vẽ
92
Bộ sưu tập
0
Đánh giá (113)
5/5
Ngày tham gia
2/4/2024
Mô tả chi tiết
quy mô 3 tầng kích thước 5x15m trên mảnh đất 5x20m.
Tầng 1: Phòng khách, phòng ngủ, phòng bếp ăn
Tầng 2: 3 phòng ngủ, phòng sinh hoạt chung
Tầng 3: phòng ngủ, phòng thờ
Bình luận (0)
Đánh giá (1)
ĐÁNH GIÁ TRUNG BÌNH
5/5
(
1 Nhận xét)
Bản vẽ rất tốt (1)
Bản vẽ tốt (0)
Bản vẽ rất hay (0)
Bản vẽ hay (0)
Bình thường (0)
Bản vẽ rất tốt
Đã mua bản vẽ tại Banvenhadep.vn
Bản vẽ rất tốt và phù hợp để tham khảo