MÃ BẢN VẼ
53047
Phương án nhà phố 3 tầng kt 5x20m
Phương án kiến trúc phố 3 tầng diện tích xây dựng 5x20m, mặt bằng bố trí công năng và file phối cảnh công trình
Ngày đăng: 04/2/2025
File download:
5X20.rvt
Dung lượng file:
46.4 MB
Phong cách: Hiện đại
Kích thước: Rộng 5m, Dài 20m, DT 100m2
CÔNG CỤ THIẾT KẾ:

Autocad

Sketchup

3D Max

Revit

Khác...
CÁC HẠNG MỤC CỦA BẢN VẼ:

Kiến trúc

Kết cấu

Điện

Nước

PCCC

Phối cảnh

Dự toán

Tài liệu

Khác...
NGƯỜI ĐĂNG
Bản vẽ
55
Bộ sưu tập
0
Đánh giá (67)
5/5
Ngày tham gia
2/3/2022
Mô tả chi tiết
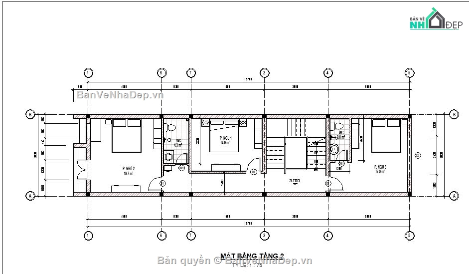
File revit kiến trúc phương án nhà phố 3 tầng diện tích xây dựng 5x20m
Bản vẽ kiến trúc bao file cad :
- Mặt bằng bố trí công năng tầng 1 ( phòng khách kết hợp kinh doanh, cầu thang, vệ sinh, bếp). tầng 2 ( bao file cad 3 phòng ngủ, vệ sinh, cầu thang ). tầng 3 ( phòng thờ, sân chơi, sân phơi )
- Mặt cắt dọc nhà điển hình
- Các view phối cảnh
Bình luận (0)
Đánh giá (1)
ĐÁNH GIÁ TRUNG BÌNH
5/5
(
1 Nhận xét)
Bản vẽ rất tốt (1)
Bản vẽ tốt (0)
Bản vẽ rất hay (0)
Bản vẽ hay (0)
Bình thường (0)
Bản vẽ rất tốt
Đã đăng bản vẽ này
Bản vẽ thiết tốt thích hợp để tham khảo