MÃ BẢN VẼ
28867
Bản vẽ thiết kế autocad nhà phố 5 tầng đẹp kích thước 5.1x9m kiến trúc kiểu quê
(
1 Nhận xét)
Viết đánh giá
Bình luận: 0
Download: 0
Lượt xem: 977
Mẫu cad bản vẽ thiết kế nhà phố quê 5 tầng 5.1x9m bao gồm kiến trúc kết cấu điện nước
Ngày đăng: 17/4/2023
File download:
Nha pho 5 tang 5.1x9.1m.rar
Dung lượng file:
3 MB
Phong cách: Chưa xác định
Kích thước: Rộng 5,1m, Dài 9m, DT 45,9m2
CÔNG CỤ THIẾT KẾ:

Autocad

Sketchup

3D Max

Revit

Khác...
CÁC HẠNG MỤC CỦA BẢN VẼ:

Kiến trúc

Kết cấu

Điện

Nước

PCCC

Phối cảnh

Dự toán

Tài liệu

Khác...
NGƯỜI ĐĂNG
Bản vẽ
259
Bộ sưu tập
0
Đánh giá (601)
5/5
Ngày tham gia
25/2/2023
Mô tả chi tiết
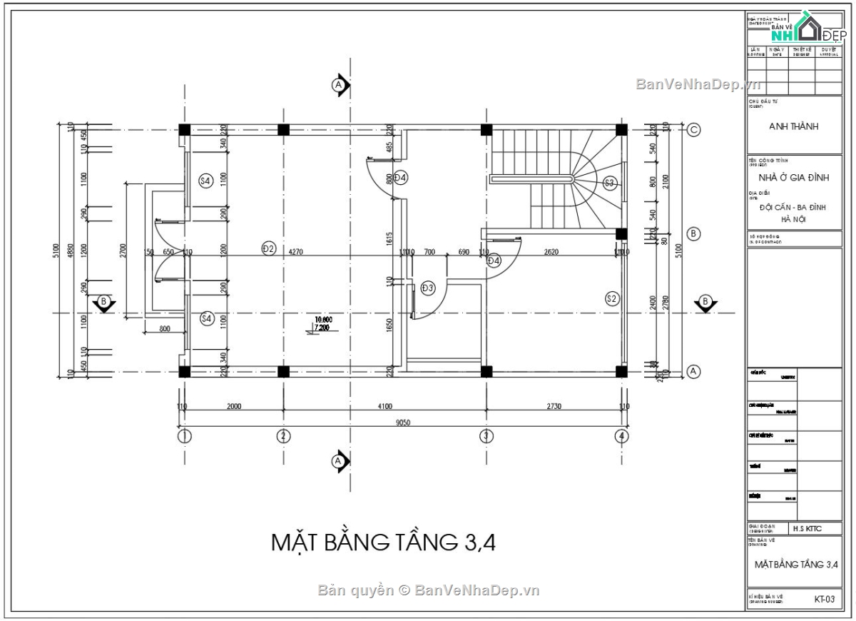
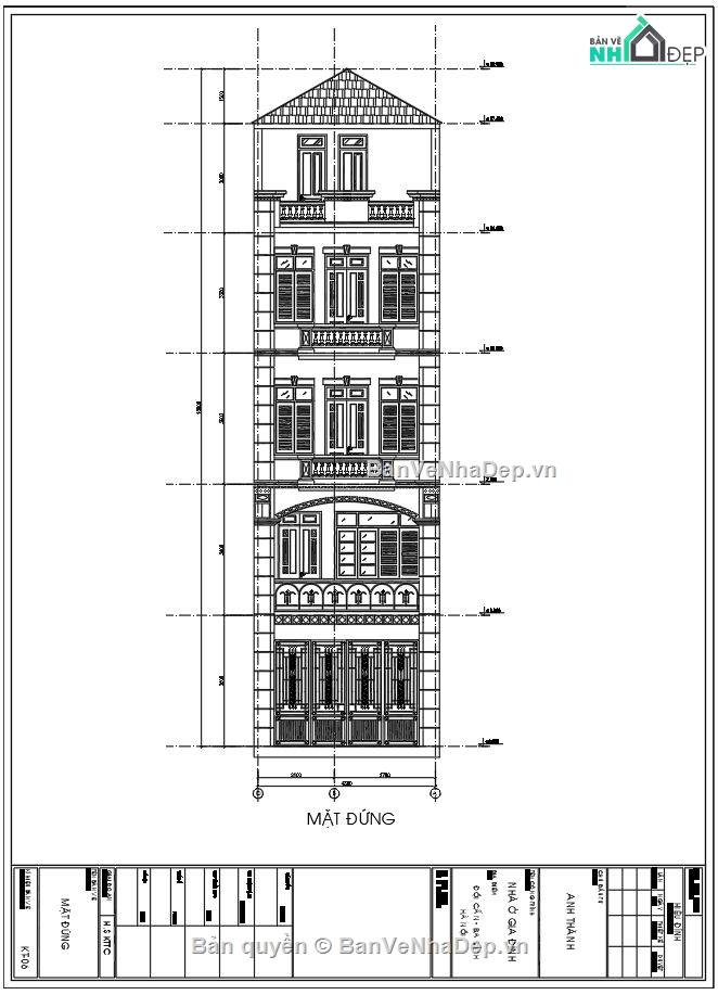
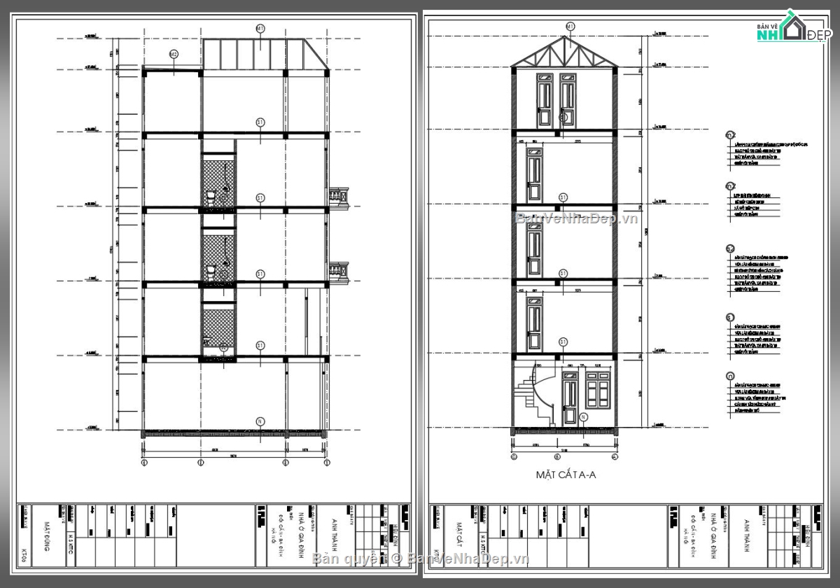
Bản vẽ thiết kế nhà phố 5 tầng kích thước 5.1x9m.
Công năng các tầng như sau:
- Tầng 1: Phòng khách, Bếp, wc gầm thang
- Tầng 2: 02 ngủ, Wc tầng
- Tầng 3,4: 02 ngủ, Wc tầng
- Tum: Phòng thờ, sân phơi
Hồ sơ bao gồm:
- File Cad kiến trúc: Mặt bằng, mặt đứng, mặt cắt, chi tiết thang, chi tiết cửa, chi tiết wc
- File cad kết cấu: TKKT
- FIle cad điện nước: TKKT
Bình luận (0)
Đánh giá (1)
ĐÁNH GIÁ TRUNG BÌNH
5/5
(
1 Nhận xét)
Bản vẽ rất tốt (1)
Bản vẽ tốt (0)
Bản vẽ rất hay (0)
Bản vẽ hay (0)
Bình thường (0)
7Plus
Thời gian 10:32
17/4/2023
Bản vẽ rất tốt
Đã đăng bản vẽ này
Bản vẽ rất tốt và phù hợp để tham khảo