MÃ BẢN VẼ
54280

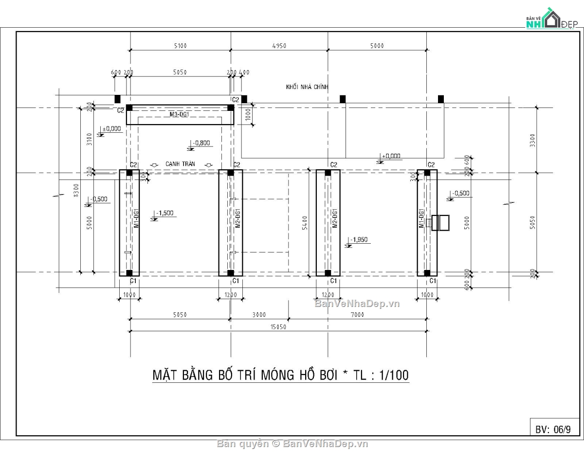
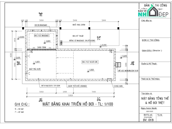
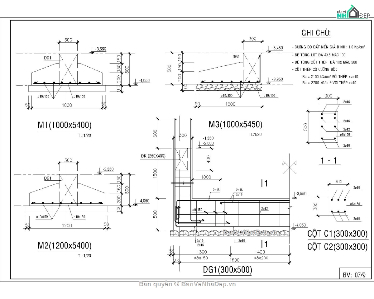
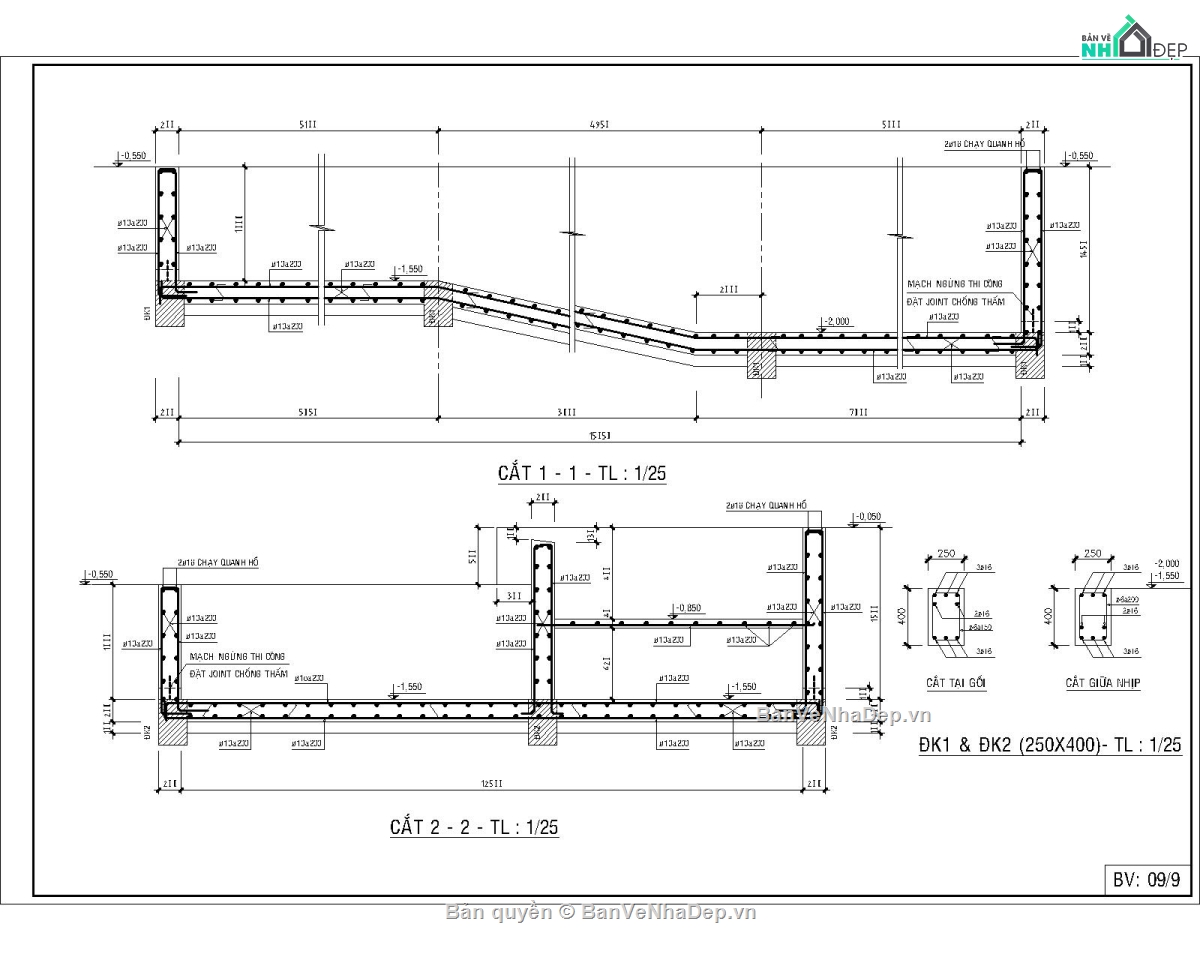
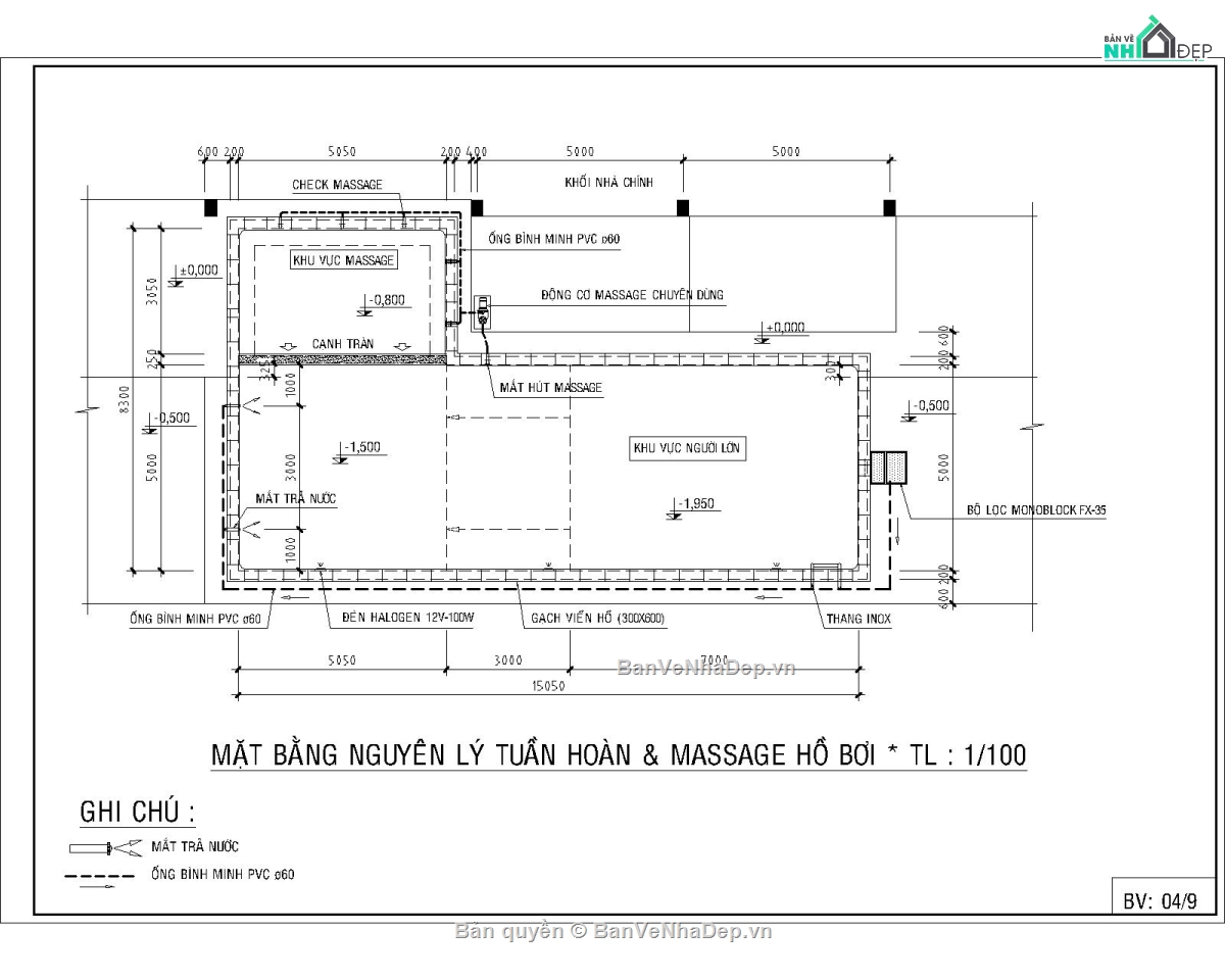
Chia sẻ quý khách Bản vẽ hồ bơi file cad (5mx15.05m) & hồ Massage(3.05m X 5.05m)

  (1 Nhận xét)     Viết đánh giá        0     0     115

Chia sẻ quý khách Bản vẽ hồ bơi file cad (5mx15.05m) & hồ Massage(3.05m X 5.05m). Sâu từ 1m - 1,450. Xử dụng hệ thống lọc thông minh.

Danh mục: Ngoại thất
Ngày đăng: 19/4/2025
File download: KT HO BOI LONG THANH (File new).dwg
Dung lượng file: 398 KB
Phong cách: Hiện đại
Kích thước: Rộng 5m, Dài 15m, DT 75m2
CÔNG CỤ THIẾT KẾ:
Autocad
Sketchup
3D Max
Revit
Khác...
CÁC HẠNG MỤC CỦA BẢN VẼ:
Kiến trúc
Kết cấu
Điện
Nước
PCCC
Phối cảnh
Dự toán
Tài liệu
Khác...

NGƯỜI ĐĂNG
(Hạng vàng)
Xem trang
bản vẽ nhà
Bản vẽ
24
bộ sưu tập bản vẽ nhà
Bộ sưu tập
1
đánh giá mẫu bản vẽ
Đánh giá (36)
5/5
ngày tham gia bản vẽ nhà đẹp
Ngày tham gia
29/12/2017

Mô tả chi tiết

Chia sẻ quý khách Bản vẽ hồ bơi file cad (5mx15.05m) & hồ Massage(3.05m X 5.05m). Sâu từ 1m - 1,450. Xử dụng hệ thống lọc thông minh. Dễ dàng xử lý nước hồ bơi. View tràn đẹp từ hồ massage tràn xuống hồ bơi. Tạo không gian đẹp cho ngôi nhà của Quý khách. 

Cảm ơn Quý khách xem tin!

Cảm ơn admin duyệt bài!

Bình luận (0)


Đánh giá (1)

ĐÁNH GIÁ TRUNG BÌNH
5/5

(1 Nhận xét)
Bản vẽ rất tốt (1)
Bản vẽ tốt (0)
Bản vẽ rất hay (0)
Bản vẽ hay (0)
Bình thường (0)
Chia sẻ nhận xét về bản vẽ
 Viết nhận xét của bạn
Hùng Ngọc
Thời gian 11:29
19/4/2025
Bản vẽ rất tốt   
 Đã đăng bản vẽ này
Bản vẽ rất tốt và phù hợp để tham khảo
HỖ TRỢ TRỰC TUYẾN