MÃ BẢN VẼ
45574
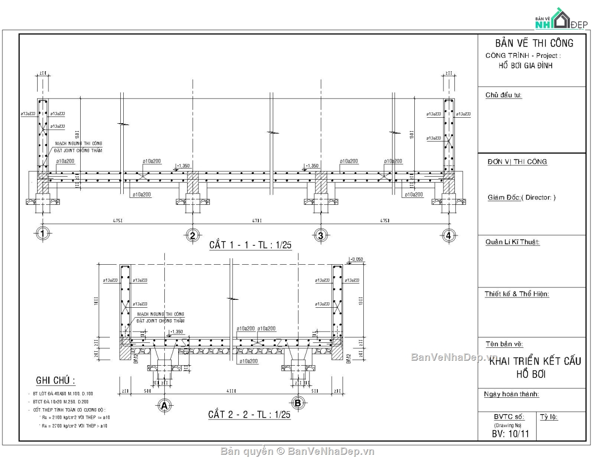
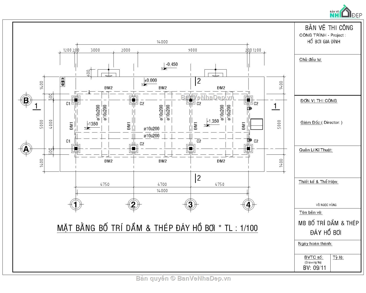
Gửi đến quý khách thiết kế hồ bơi 5x14m đầy đủ kiến trúc & kết cấu.
(
1 Nhận xét)
Viết đánh giá
Bình luận: 0
Download: 2
Lượt xem: 387
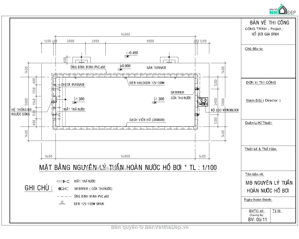
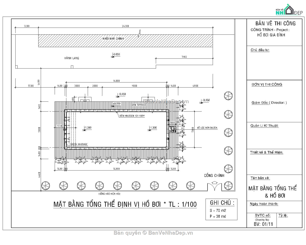
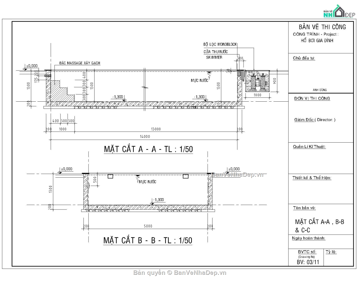
Chia xẻ quý khách thiết kế hồ bơi (5mx14m) sử dụng hệ thống lọc thông minh ( lọc cardtrick). đầy đủ option (đèn, massage, hệ thống bơi ngược dòng)
Ngày đăng: 29/2/2024
File download:
HO BOI (5MX14M) HOC MON - TPHCM.dwg
Dung lượng file:
1 MB
Phong cách: Hiện đại
Kích thước: Rộng 5m, Dài 14m, DT 70m2
CÔNG CỤ THIẾT KẾ:

Autocad

Sketchup

3D Max

Revit

Khác...
CÁC HẠNG MỤC CỦA BẢN VẼ:

Kiến trúc

Kết cấu

Điện

Nước

PCCC

Phối cảnh

Dự toán

Tài liệu

Khác...
NGƯỜI ĐĂNG
Bản vẽ
24
Bộ sưu tập
1
Đánh giá (36)
5/5
Ngày tham gia
29/12/2017
Mô tả chi tiết
chia xẻ quý khách thiết kế hồ bơi (5mx14m) đầy đủ kiến trúc & kết cấu. sử dụng hệ thống lọc thông minh ( lọc cardtrick). đầy đủ option (đèn, massage, hệ thống bơi ngược dòng). thích hợp cho các công trình hồ bơi gia đình. tạo cảm giác thư giãn cho quý khách & tạo cảnh quan đẹp cho ngôi nhà của quý khách.
cám ơn quý khách đã xem tin !
cám ơn admin đã duyệt bài !
Bình luận (0)
Đánh giá (1)
ĐÁNH GIÁ TRUNG BÌNH
5/5
(
1 Nhận xét)
Bản vẽ rất tốt (1)
Bản vẽ tốt (0)
Bản vẽ rất hay (0)
Bản vẽ hay (0)
Bình thường (0)
Bản vẽ rất tốt
Đã đăng bản vẽ này
Bản vẽ thiết tốt thích hợp để tham khảo