MÃ BẢN VẼ
14912
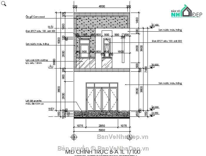
File cad kiến trúc, kết cấu, điện nước nhà phố 2 tầng 5x14m
(
1 Nhận xét)
Viết đánh giá
Bình luận: 0
Download: 3
Lượt xem: 2107
Hôm nay chia sẻ gửi tới mọi người tham khảo một file cad nhà phố 2 tầng kích thước 5x14m đầy đủ kiến trúc, kết cấu, điện nước.
Ngày đăng: 06/12/2020
File download:
NHA PHO 5X14M.7z
Dung lượng file:
1 MB
Phong cách: Hiện đại
Kích thước: Rộng 5m, Dài 14m, DT 70m2
CÔNG CỤ THIẾT KẾ:

Autocad

Sketchup

3D Max

Revit

Khác...
CÁC HẠNG MỤC CỦA BẢN VẼ:

Kiến trúc

Kết cấu

Điện

Nước

PCCC

Phối cảnh

Dự toán

Tài liệu

Khác...
NGƯỜI ĐĂNG
Bản vẽ
163
Bộ sưu tập
0
Đánh giá (184)
4/5
Ngày tham gia
27/4/2019
Mô tả chi tiết
Bản vẽ autocad nhà phố 2 tầng 5x14m đầy đủ kiến trúc, kết cấu, điện nước với công năng:
tầng 1: sân để xe, phòng khách, bếp +bàn ăn, 1 vệ sinh, sân sau.
tầng 2: ban công, 3 phòng ngủ, 1 vệ sinh.
File rất hữu ích, mời mọi người tải file tham khảo ạ.
Bình luận (0)
Đánh giá (1)
ĐÁNH GIÁ TRUNG BÌNH
5/5
(
1 Nhận xét)
Bản vẽ rất tốt (1)
Bản vẽ tốt (0)
Bản vẽ rất hay (0)
Bản vẽ hay (0)
Bình thường (0)
Bản vẽ rất tốt
Đã đăng bản vẽ này
Bản vẽ thiết tốt thích hợp để tham khảo