MÃ BẢN VẼ
19293
Hồ sơ mẫu nhà ở phố 3 tầng 8.6x18m (kiến trúc, kết cấu, điện nước)
(
1 Nhận xét)
Viết đánh giá
Bình luận: 0
Download: 6
Lượt xem: 814
Hồ sơ thiết kế nhà ở 3 tầng 8.6x18m với gồm thiết kế kiến trúc, kết cấu, điện nước. phương án mặt tiền cao cấp kèm theo ảnh phối cảnh.
Ngày đăng: 18/8/2022
File download:
01. NHA 3 TANG 8.5X18M.rar
Dung lượng file:
8.17 MB
Phong cách: Hiện đại
Kích thước: Rộng 8,6m, Dài 18m, DT 154,8m2
CÔNG CỤ THIẾT KẾ:

Autocad

Sketchup

3D Max

Revit

Khác...
CÁC HẠNG MỤC CỦA BẢN VẼ:

Kiến trúc

Kết cấu

Điện

Nước

PCCC

Phối cảnh

Dự toán

Tài liệu

Khác...
NGƯỜI ĐĂNG
Bản vẽ
40
Bộ sưu tập
0
Đánh giá (40)
5/5
Ngày tham gia
30/7/2022
Mô tả chi tiết
– bản vẽ file cad nhà dân 3 tầng 8.6x18m với phương án mặt tiền hiện đại, công năng bao gồm:
+ tầng 1: ga ra, phòng khách, bếp, ăn + 1 phòng ngủ, 1wc
+ tầng 2: 3 phòng ngủ, 3 vệ sinh khép kín
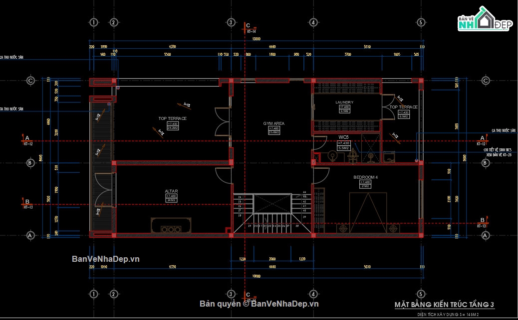
+ tầng 3: phòng thờ, 1 phòng ngủ, phòng gym, phòng giặt, phơi và sân chơi phía trước
– bản vẽ file cad nhà dân 3 tầng 8.6x18m bao đầy đủ đầy đủ các file cad cad :
+ file phối cảnh minh họa mặt tiền
+ file cad mặt bằng nội thất, mặt bằng triển khai
+ file cad file cad mặt đứng, mặt cắt, mặt ngang
+ file cad file cad phương án kiến trúc, đầy đủ kiến trúc
+ file cad file cad kết cấu công trình
+ file cad file cad điện nước công trình
Bình luận (0)
Đánh giá (1)
ĐÁNH GIÁ TRUNG BÌNH
5/5
(
1 Nhận xét)
Bản vẽ rất tốt (1)
Bản vẽ tốt (0)
Bản vẽ rất hay (0)
Bản vẽ hay (0)
Bình thường (0)
Bản vẽ rất tốt
Đã mua bản vẽ tại Banvenhadep.vn
Bản vẽ thiết tốt thích hợp để tham khảo