MÃ BẢN VẼ
17143
Hồ sơ thiết kế nhà phố 3 tầng 4x11m kèm file sketchup ngoại thất
(
1 Nhận xét)
Viết đánh giá
Bình luận: 0
Download: 2
Lượt xem: 1207
Thiết kế bản vẽ nhà phố 3 tầng với kích thước xây dựng 4x11m. Công năng 1 phòng khách, 2 phòng ngủ, 2wc, 1 bếp+ăn, phòng giặt+phơi
Ngày đăng: 03/11/2021
File download:
hs-4x11m.rar
Dung lượng file:
38.2 MB
Phong cách: Hiện đại
Kích thước: Rộng 4m, Dài 11m, DT 44m2
CÔNG CỤ THIẾT KẾ:

Autocad

Sketchup

3D Max

Revit

Khác...
CÁC HẠNG MỤC CỦA BẢN VẼ:

Kiến trúc

Kết cấu

Điện

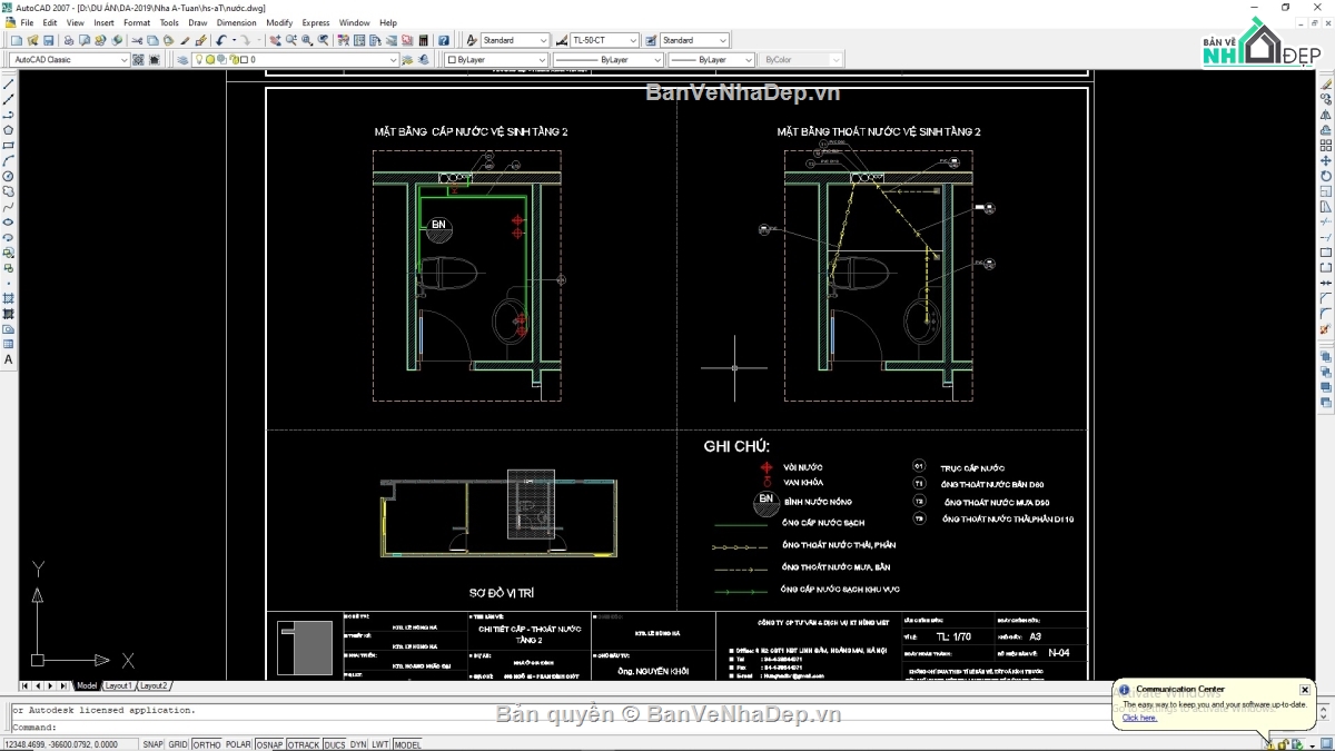
Nước

PCCC

Phối cảnh

Dự toán

Tài liệu

Khác...
NGƯỜI ĐĂNG
Bản vẽ
6
Bộ sưu tập
0
Đánh giá (7)
5/5
Ngày tham gia
25/11/2018
Mô tả chi tiết
Hồ sơ đầy đủ bản vẽ kỹ thuật thi công + ảnh file phối cảnh ngoại thất kích thước: 4x11m công năng bao gồm:
+) tầng 1: 01 phòng khách, 01 phòng bếp + ăn.
+) tầng 2: 02 phòng ngủ,01 phòng wc chung.
+) tầng tum: 01 phòng thờ, 01 phòng giặt + sân phơi.
kính gửi a/c/e tham khảo
Bình luận (0)
Đánh giá (1)
ĐÁNH GIÁ TRUNG BÌNH
5/5
(
1 Nhận xét)
Bản vẽ rất tốt (1)
Bản vẽ tốt (0)
Bản vẽ rất hay (0)
Bản vẽ hay (0)
Bình thường (0)
Bản vẽ rất tốt
Đã đăng bản vẽ này
Bản vẽ thiết tốt thích hợp để tham khảo