Đăng nhập
Đăng kí
NẠP TIỀN
THƯ VIỆN BẢN VẼ
HỘI KIẾN TRÚC SƯ
ĐĂNG TIN & THẢO LUẬN
CÔNG CỤ
Autocad
Sketchup
3D Max
Revit
Khác...
DANH MỤC
Biệt thự
Lâu đài, dinh thự
Biệt thự 1 Tầng
Biệt thự 2 Tầng
Biệt thự 3 Tầng
Biệt thự Trên 3 Tầng
Nhà phố
Nhà phố 1 Tầng
Nhà phố 2 Tầng
Nhà phố 3 Tầng
Nhà phố 4 Tầng
Nhà phố Trên 4 Tầng
Nhà xưởng
Nội thất
Biệt thự
Nhà phố
Chung cư, Văn phòng
Cửa hàng, Quán
Nội thất khác...
Ngoại thất
Bản vẽ khác...
Nhà thờ, Đình chùa
Chung cư, Văn phòng
Công trình xã hội
Cửa hàng, Quán
Khách sạn
Nhà cấp 4
Bản vẽ khác...
BỘ SƯU TẬP
Tìm bản vẽ
Autocad
Sketchup
3D Max
Revit
Khác...
ĐĂNG BẢN VẼ
×
ĐĂNG NHẬP
Đăng nhập nhanh
Log in
Log in
Bạn chưa có tài khoản Banvenhadep.vn?
Đăng ký ngay
Email
*
Password
*
Mã khác
Quên mật khẩu?
Đăng nhập
Trang chủ
Nhà phố "Nhà phố 3 Tầng"
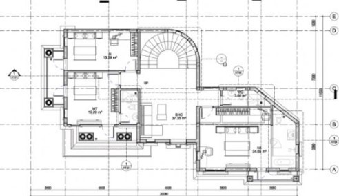
Kiến trúc mẫu nhà phố tân cổ điển 11.5x20m
MÃ BẢN VẼ
61925
Kiến trúc mẫu nhà phố tân cổ điển 11.5x20m
(
1 Nhận xét
)
Viết đánh giá
Bình luận:
0
Download:
0
Lượt xem:
2
Thiết kế revit thiết kế nhà ở tân cổ điển 11.5x20m đầy đủ kiến trúc. hy vọng sẽ hữu ích tới các bạn.
Danh mục:
Nhà phố
Nhà phố 3 Tầng
Ngày đăng:
13/8/2025
File download:
.rar
Dung lượng file:
#
Phong cách:
Hiện đại
Kích thước:
...
CÔNG CỤ THIẾT KẾ:
Autocad
Sketchup
3D Max
Revit
Khác...
CÁC HẠNG MỤC CỦA BẢN VẼ:
Kiến trúc
Kết cấu
Điện
Nước
PCCC
Phối cảnh
Dự toán
Tài liệu
Khác...
NGƯỜI ĐĂNG
Vân Anh Đỗ
(Hạng vàng)
Xem
trang
Bản vẽ
310
Bộ sưu tập
0
Đánh giá (
672
)
5/5
Ngày tham gia
12/4/2025
Mô tả chi tiết
với gồm thiết kế phần kiến trúc, có thể tải về tham khảo và học tập
Bình luận (
0
)
BÌNH LUẬN
BÌNH LUẬN
Đánh giá (
1
)
ĐÁNH GIÁ TRUNG BÌNH
5
/5
(
1 Nhận xét
)
Bản vẽ rất tốt
(1)
Bản vẽ tốt
(0)
Bản vẽ rất hay
(0)
Bản vẽ hay
(0)
Bình thường
(0)
Chia sẻ nhận xét về bản vẽ
Viết nhận xét của bạn
Vân Anh Đỗ
Thời gian 08:43
25/10/2025
Bản vẽ rất tốt
Đã đăng bản vẽ này
Bản vẽ thiết tốt thích hợp để tham khảo
Hiển thị 20
Hiển thị 50
Tất cả
×
NẠP TIỀN DOWNLOAD NGAY
Bạn đang download:
[Mã bản vẽ
61925
]
Phí tải
150.000
đ
CHUYỂN KHOẢN
Bạn cần đăng nhập để tải bản vẽ qua chức năng này!
ĐĂNG NHẬP NGAY
Phí download
150.000
đ
DOWNLOAD
NGAY
Link download dự phòng
Bạn có bản vẽ hay
ĐĂNG
BÁN
NGAY
LƯU
VÀO
YÊU THÍCH
Báo
vi phạm
bản quyền
Gửi hỗ trợ - Báo lỗi
Gửi ngay
CHIA SẺ NHANH
(BẢN VẼ
61925
)
Gửi tới email bạn bè
TỪ KHÓA LIÊN QUAN
Nhà phố 5x20m
Kiến trúc nhà phố
Nhà phố tân cổ điển
Bản vẽ tương tự
BẢN VẼ
Nhà phố 3 Tầng
633
Nhà phố 3 tầng mái bằng 5x20m đầy đủ hồ sơ thi công
250.000
đ
BẢN VẼ
Nhà phố 3 Tầng
510
Nhà phố 3 tầng hiện đại 5x20m. FULL HS
85.000
đ
BẢN VẼ
Nhà phố 3 Tầng
378
Nhà phố 3 tầng hiện đại 5x20m
85.000
đ
BẢN VẼ
Biệt thự 3 Tầng
383
Nhà phố 3 tầng hiện đại 5x20m 2024
65.000
đ
BẢN VẼ
Nhà phố 3 Tầng
548
Sketchup Nhà phố 3 tầng mái bằng 5x20m, có kèm cad bố trí vật dụng và hình ảnh đã kiết xuất
50.000
đ
Gợi ý cho bạn
BẢN VẼ
Nhà xưởng
539
Thiết kế nhà xưởng kích thước 12x50m
99.000
đ
BẢN VẼ
Nhà phố 2 Tầng
299
File su nhà 2 tầng kích thước 6x10.8m
20.000
đ
BẢN VẼ
Nhà phố 2 Tầng
360
Model 3dsu nhà phố 2 tầng kiểu mới
MIỄN PHÍ
BẢN VẼ
Biệt thự 1 Tầng
282
Nhà biệt thự 1 tầng kích thước 22.4x11m model .skp
50.000
đ
BẢN VẼ
Nhà cấp 4
495
Phối cảnh nhà nhà cấp 4 kích thước thiết kế 5x8.5m
20.000
đ
HỖ TRỢ TRỰC TUYẾN