Đăng nhập
Đăng kí
NẠP TIỀN
THƯ VIỆN BẢN VẼ
HỘI KIẾN TRÚC SƯ
ĐĂNG TIN & THẢO LUẬN
CÔNG CỤ
Autocad
Sketchup
3D Max
Revit
Khác...
DANH MỤC
Biệt thự
Lâu đài, dinh thự
Biệt thự 1 Tầng
Biệt thự 2 Tầng
Biệt thự 3 Tầng
Biệt thự Trên 3 Tầng
Nhà phố
Nhà phố 1 Tầng
Nhà phố 2 Tầng
Nhà phố 3 Tầng
Nhà phố 4 Tầng
Nhà phố Trên 4 Tầng
Nhà xưởng
Nội thất
Biệt thự
Nhà phố
Chung cư, Văn phòng
Cửa hàng, Quán
Nội thất khác...
Ngoại thất
Bản vẽ khác...
Nhà thờ, Đình chùa
Chung cư, Văn phòng
Công trình xã hội
Cửa hàng, Quán
Khách sạn
Nhà cấp 4
Bản vẽ khác...
BỘ SƯU TẬP
Tìm bản vẽ
Autocad
Sketchup
3D Max
Revit
Khác...
ĐĂNG BẢN VẼ
×
ĐĂNG NHẬP
Đăng nhập nhanh
Log in
Log in
Bạn chưa có tài khoản Banvenhadep.vn?
Đăng ký ngay
Email
*
Password
*
Mã khác
Quên mật khẩu?
Đăng nhập
Trang chủ
Biệt thự "Biệt thự 2 Tầng"
Kiến trúc nhà biệt thự 2 tầng mái nhật 10.5x12m
MÃ BẢN VẼ
61920
Kiến trúc nhà biệt thự 2 tầng mái nhật 10.5x12m
(
1 Nhận xét
)
Viết đánh giá
Bình luận:
0
Download:
0
Lượt xem:
2
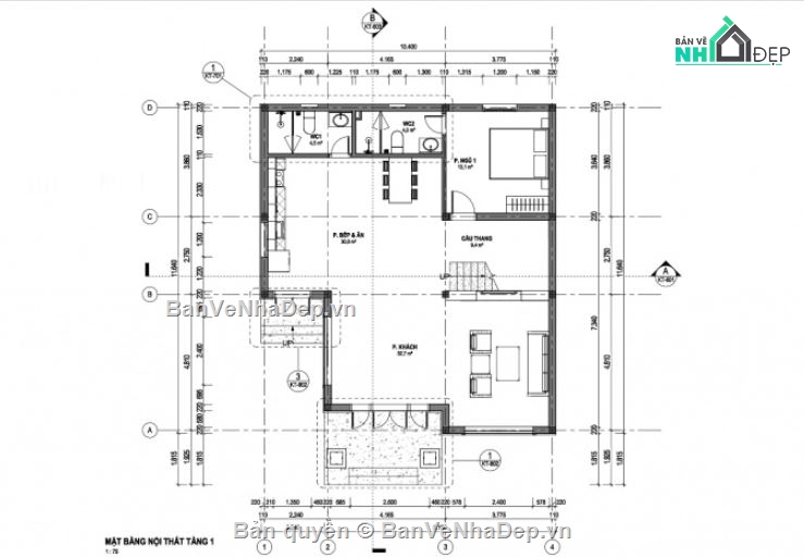
Bản vẽ revit bản vẽ nhà biệt thự 2 tầng mái nhật 10.5x12m đầy đủ kiến trúc.
Danh mục:
Biệt thự
Biệt thự 2 Tầng
Ngày đăng:
13/8/2025
File download:
.rar
Dung lượng file:
#
Phong cách:
Hiện đại
Kích thước:
...
CÔNG CỤ THIẾT KẾ:
Autocad
Sketchup
3D Max
Revit
Khác...
CÁC HẠNG MỤC CỦA BẢN VẼ:
Kiến trúc
Kết cấu
Điện
Nước
PCCC
Phối cảnh
Dự toán
Tài liệu
Khác...
NGƯỜI ĐĂNG
Vân Anh Đỗ
(Hạng vàng)
Xem
trang
Bản vẽ
310
Bộ sưu tập
0
Đánh giá (
672
)
5/5
Ngày tham gia
12/4/2025
Mô tả chi tiết
chi tiết bản vẽ:
+ mặt bằng bố trí nội thất các tầng
+ mặt bằng xây tường các tầng
+ mặt đứng công trình
+ mặt cắt công trình
+ đầy đủ thang
+ đầy đủ mặt đứng công trình
+ đầy đủ ban công lan can
Bình luận (
0
)
BÌNH LUẬN
BÌNH LUẬN
Đánh giá (
1
)
ĐÁNH GIÁ TRUNG BÌNH
5
/5
(
1 Nhận xét
)
Bản vẽ rất tốt
(1)
Bản vẽ tốt
(0)
Bản vẽ rất hay
(0)
Bản vẽ hay
(0)
Bình thường
(0)
Chia sẻ nhận xét về bản vẽ
Viết nhận xét của bạn
Vân Anh Đỗ
Thời gian 08:43
25/10/2025
Bản vẽ rất tốt
Đã đăng bản vẽ này
Bản vẽ thiết tốt thích hợp để tham khảo
Hiển thị 20
Hiển thị 50
Tất cả
×
NẠP TIỀN DOWNLOAD NGAY
Bạn đang download:
[Mã bản vẽ
61920
]
Phí tải
150.000
đ
CHUYỂN KHOẢN
Bạn cần đăng nhập để tải bản vẽ qua chức năng này!
ĐĂNG NHẬP NGAY
Phí download
150.000
đ
DOWNLOAD
NGAY
Link download dự phòng
Bạn có bản vẽ hay
ĐĂNG
BÁN
NGAY
LƯU
VÀO
YÊU THÍCH
Báo
vi phạm
bản quyền
Gửi hỗ trợ - Báo lỗi
Gửi ngay
CHIA SẺ NHANH
(BẢN VẼ
61920
)
Gửi tới email bạn bè
TỪ KHÓA LIÊN QUAN
biệt thự 2 tầng
kiến trúc biệt thự
Biệt thự Revit
Bản vẽ tương tự
BẢN VẼ
Nhà phố 2 Tầng
827
Dựng mẫu biệt thự 02 tầng chữ L kích thước 8.41x16.43m kèm hồ sơ kiến trúc mặt bằng, mặt đứng, mặt cắt bằng Revit 2019
80.000
đ
BẢN VẼ
Biệt thự 2 Tầng
751
Dựng mẫu file cad thiết kế biệt thự 2 tầng kích thước 6.2x15.6m gồm kiến trúc và kết cấu
40.000
đ
BẢN VẼ
Biệt thự 3 Tầng
761
Mẫu file cad thiết kế, sửa chữa chỉnh sửa nhà biệt thự từ kiến trúc hiện đại thành nhà biệt thự kiến trúc tân cổ điển 3 tầng kích thước 8.38x32.28m
80.000
đ
BẢN VẼ
Biệt thự 2 Tầng
1282
Dựng mẫu file sketchup phối cảnh biệt thự đôi 2 tầng hiện đại
5.000
đ
BẢN VẼ
Biệt thự 1 Tầng
915
Dựng mẫu file revit thiết kế kiến trúc mẫu biệt thự vườn kích thước 9.3x15.4m kèm phối cảnh
50.000
đ
Gợi ý cho bạn
BẢN VẼ
Nhà thờ, Đình chùa
1368
Model Sketchup Nhà thờ từ đường hợp phong thủy
100.000
đ
BẢN VẼ
Nhà thờ, Đình chùa
1406
Sketchup phối cảnh nhà thờ từ đường hợp phong thủy.
100.000
đ
BẢN VẼ
Nhà xưởng
30
Nhà xưởng 24x54m (Xưởng điện khí dự án tàu sửa chữa tàu ngầm X52)
80.000
đ
BẢN VẼ
Nhà thờ, Đình chùa
1505
Sketchup thiết kế phối cảnh lăng mộ đẹp
100.000
đ
BẢN VẼ
Công trình xã hội
26
Trụ sở bảo hiểm xã hội tỉnh Bình Định 7 tầng 1 tum 32.7x18.4m
80.000
đ
HỖ TRỢ TRỰC TUYẾN