MÃ BẢN VẼ
59544
Mẫu biệt thự mái nhật cấp 4 14.2x27.3m, bản vẽ cad kiến trúc, kết cấu, điện nước, ảnh 3dmax
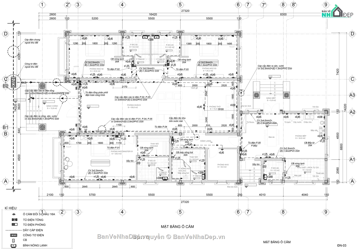
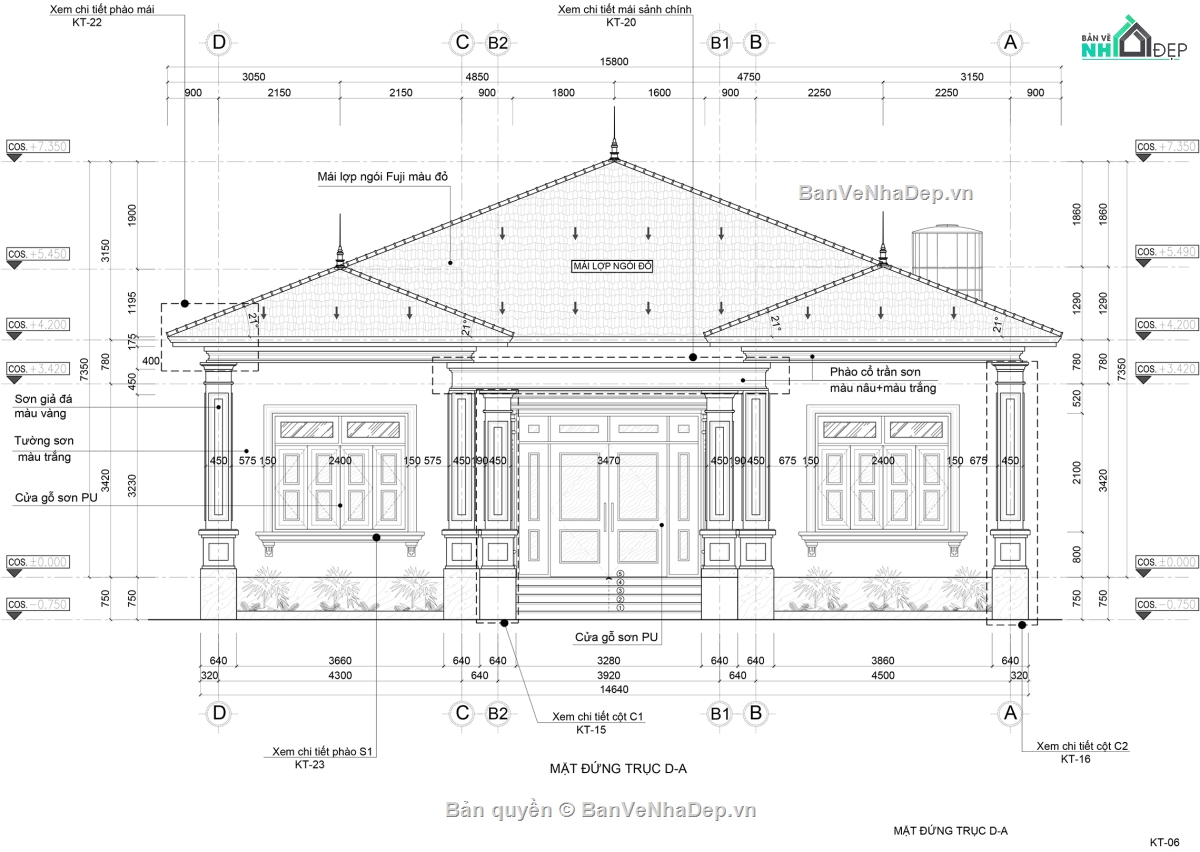
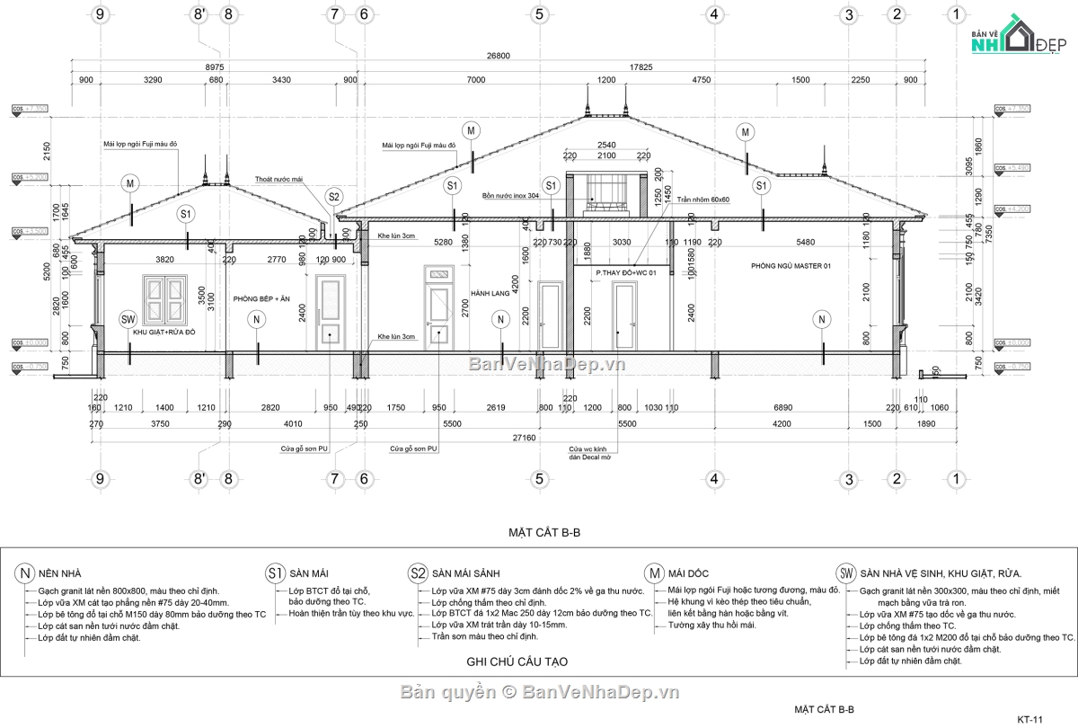
Biệt thự mái nhật cấp 4 diện tích: nhà chính: ~248 m², bếp : ~56 m² công năng: p.khách, p.thờ, 3 p.ngủ wc khép kín, p.xông hơi, p.kho, p.bếp + ăn. đầy đủ model autocad.
Ngày đăng: 04/7/2025
File download:
Biet thu Mai Nhat 1 Tang.rar
Dung lượng file:
46 MB
Phong cách: Hiện đại
Kích thước: Rộng 14,2m, Dài 27,3m, DT 387,66m2
CÔNG CỤ THIẾT KẾ:

Autocad

Sketchup

3D Max

Revit

Khác...
CÁC HẠNG MỤC CỦA BẢN VẼ:

Kiến trúc

Kết cấu

Điện

Nước

PCCC

Phối cảnh

Dự toán

Tài liệu

Khác...
NGƯỜI ĐĂNG
Bản vẽ
3
Bộ sưu tập
0
Đánh giá (3)
5/5
Ngày tham gia
29/10/2024
Mô tả chi tiết
biệt thự mái nhật cấp 4 diện tích: nhà chính: ~248 m², bếp : ~56 m² công năng chính: bản vẽ phòng khách, phòng thờ, 3 phòng ngủ wc khép kín, phòng xông hơi, phòng kho, phòng bếp + ăn. đầy đủ model autocad.
cảm ơn khobanve.vn đã tạo ra 1 cộng đồng thiết kế để các kts có thể gửi đến các thiết kế với nhau
Bình luận (0)
Đánh giá (1)
ĐÁNH GIÁ TRUNG BÌNH
5/5
(
1 Nhận xét)
Bản vẽ rất tốt (1)
Bản vẽ tốt (0)
Bản vẽ rất hay (0)
Bản vẽ hay (0)
Bình thường (0)
Bản vẽ rất tốt
Đã đăng bản vẽ này
Bản vẽ thiết tốt thích hợp để tham khảo