MÃ BẢN VẼ
54369

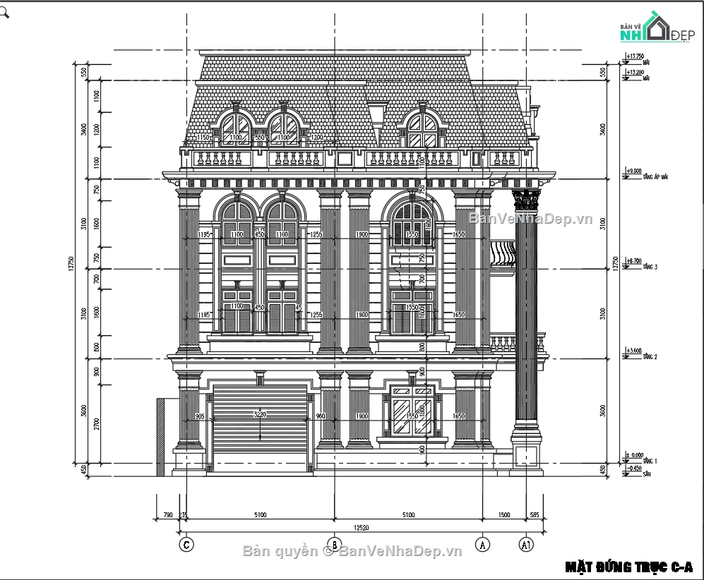
Mẫu biệt thự tân cổ điển cấp 4 hầm, 3 tầng nổi, cấp 4 áp mái diện tích xây dựng 10.7x16.45m

  (1 Nhận xét)     Viết đánh giá        0     2     87

Full bản vẽ kiến trúc, kết cấu, điện nước mẫu biệt thự cấp 4 hầm 3 tầng nổi cấp 4 áp mái đẹp nhất 2025

Ngày đăng: 16/4/2025
File download: 9 Dinh thu Nam Tu Liem-20250417T012609Z-001.zip
Dung lượng file: 76.5 MB
Phong cách: Hiện đại
Kích thước: Rộng 10,7m, Dài 16,45m, DT 176,01m2
CÔNG CỤ THIẾT KẾ:
Autocad
Sketchup
3D Max
Revit
Khác...
CÁC HẠNG MỤC CỦA BẢN VẼ:
Kiến trúc
Kết cấu
Điện
Nước
PCCC
Phối cảnh
Dự toán
Tài liệu
Khác...

NGƯỜI ĐĂNG
(Hạng vàng)
Xem trang
bản vẽ nhà
Bản vẽ
20
bộ sưu tập bản vẽ nhà
Bộ sưu tập
0
đánh giá mẫu bản vẽ
Đánh giá (22)
5/5
ngày tham gia bản vẽ nhà đẹp
Ngày tham gia
23/7/2022

Mô tả chi tiết

File autocad đầy đủ kiến trúc, kết cấu, điện, nước, mẫu biệt thự nhà cấp 4 hầm, 3 tầng nổi, 1 áp mái gồm:

Bản vẽ kiến trúc bao gồm :

-mặt bằng bố trí công năng tầng hầm gồm p.giúp việc, p. kho, p. hát gia đình, sảnh, p.sinh hoạt chung, p để rượu

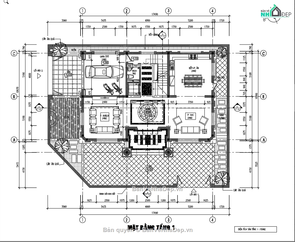
-mặt bằng bố trí công năng tầng 1 gồm tiền sảnh, ga ra ô tô, wc1, p.bếp+ăn, p.sinh hoạt chung, sảnh, p. khách

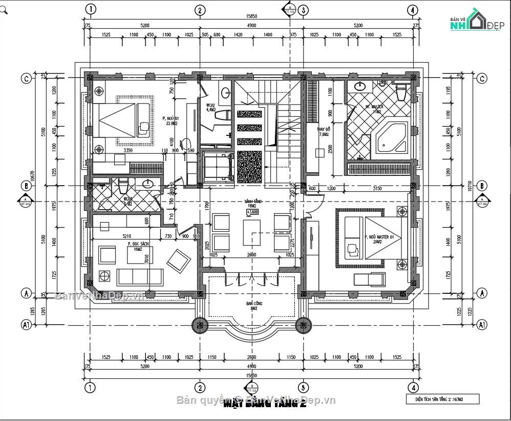
-mặt bằng bố trí công năng tầng 2 gồm p. ngủ 1. wc2, wc3, wc master 1, phòng ngủ master 1, ban công, sảnh tầng, p.đọc sách

-mặt bằng bố trí công năng tầng 3 gồm  p.ngủ 2, wc4, p. thay đồ. wc master, p. ngủ master 2, sảnh tầng, p.ngủ 3, wc5

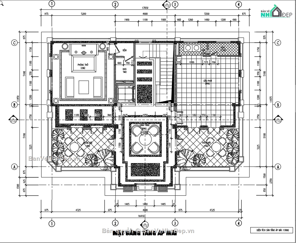
-mặt bằng bố trí công năng tầng áp mái gồm p. thờ, kho, sân phơi, vườn mái, sảnh tầng, vườn mái

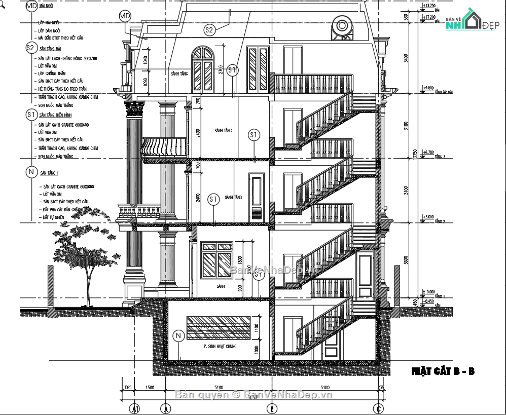
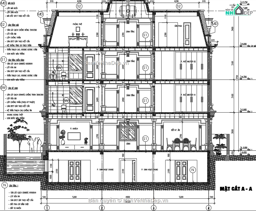
- Các gồm kết cấu, điện, nước

Bình luận (0)


Đánh giá (1)

ĐÁNH GIÁ TRUNG BÌNH
5/5

(1 Nhận xét)
Bản vẽ rất tốt (1)
Bản vẽ tốt (0)
Bản vẽ rất hay (0)
Bản vẽ hay (0)
Bình thường (0)
Chia sẻ nhận xét về bản vẽ
 Viết nhận xét của bạn
Trithuc Tre
Thời gian 23:51
18/5/2025
Bản vẽ rất tốt   
 Đã mua bản vẽ tại Banvenhadep.vn
Bản vẽ thiết tốt thích hợp để tham khảo
HỖ TRỢ TRỰC TUYẾN