MÃ BẢN VẼ
59997
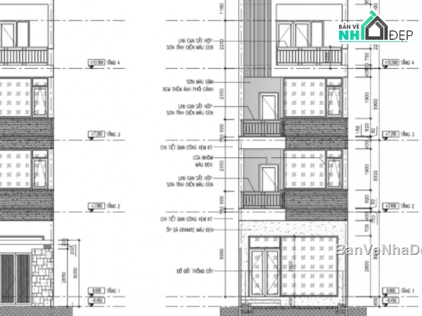
Nhà phố 4 tầng 5x20m gồm đẹp
Tệp hồ sơ mẫu nhà phố 4 tầng kích thước xây dựng 5x20m kiến trúc, kết cấu, điện nước, nội thất
Ngày đăng: 21/7/2025
File download:
.rar
Dung lượng file:
MB
Phong cách: Hiện đại
Kích thước: Rộng 5m, Dài 20m, DT 100m2
CÔNG CỤ THIẾT KẾ:

Autocad

Sketchup

3D Max

Revit

Khác...
CÁC HẠNG MỤC CỦA BẢN VẼ:

Kiến trúc

Kết cấu

Điện

Nước

PCCC

Phối cảnh

Dự toán

Tài liệu

Khác...
NGƯỜI ĐĂNG
Bản vẽ
355
Bộ sưu tập
0
Đánh giá (458)
5/5
Ngày tham gia
9/6/2025
Mô tả chi tiết
Công năng:ý tưởng bản vẽ nội thất
Tầng 1: phòng khách - bếp ăn - vệ sinh chung
Tầng 2: phòng ngủ master - phòng ngủ con gái
Tầng 3: 2 phòng ngủ chung 1 vệ sinh
tầng 4: phòng thờ - giặt phơi - sân thượng
Bình luận (0)
Đánh giá (1)
ĐÁNH GIÁ TRUNG BÌNH
5/5
(
1 Nhận xét)
Bản vẽ rất tốt (1)
Bản vẽ tốt (0)
Bản vẽ rất hay (0)
Bản vẽ hay (0)
Bình thường (0)
Bản vẽ rất tốt
Đã mua bản vẽ tại Banvenhadep.vn
Bản vẽ thiết tốt thích hợp để tham khảo