MÃ BẢN VẼ
57013
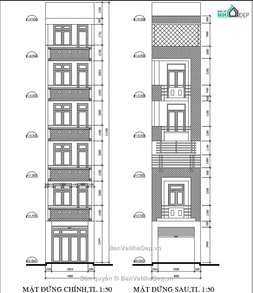
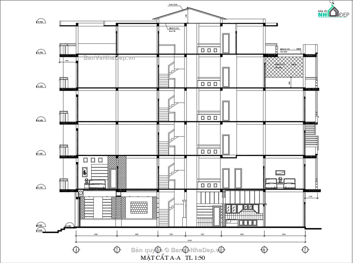
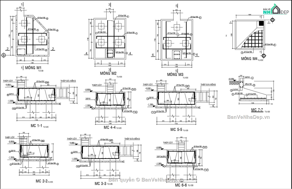
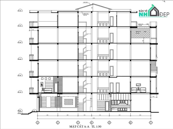
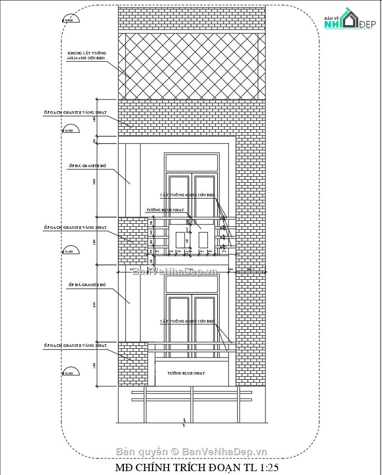
Bản vẽ nhà phố 6 tầng hiện đại 4x20m
(
1 Nhận xét)
Viết đánh giá
Bình luận: 0
Download: 1
Lượt xem: 101
Bản vẽ nhà phố hiện đại, kích thước nền 4x20m. Hồ sơ gồm: kiến trúc, kết cấu, điện nước, dự toán chi tiết công trình
Ngày đăng: 15/6/2025
File download:
39. Nha pho hien dai 4x20m - 6 Tang.rar
Dung lượng file:
4,7 MB
Phong cách: Hiện đại
Kích thước: Rộng 4m, Dài 20m, DT 80m2
CÔNG CỤ THIẾT KẾ:

Autocad

Sketchup

3D Max

Revit

Khác...
CÁC HẠNG MỤC CỦA BẢN VẼ:

Kiến trúc

Kết cấu

Điện

Nước

PCCC

Phối cảnh

Dự toán

Tài liệu

Khác...
NGƯỜI ĐĂNG
Bản vẽ
47
Bộ sưu tập
0
Đánh giá (98)
5/5
Ngày tham gia
25/5/2024
Mô tả chi tiết
Ngôi nhà 6 tầng hiện đại có kích thước 4x20m, được thiết kế tối ưu công năng với 1 phòng khách, 1 phòng bếp, 8 phòng ngủ, 1 phòng thờ, 1 phòng giặt, 1 phòng kho và sân thượng rộng rãi, phù hợp cho gia đình đông thành viên hoặc kết hợp cho thuê.
Bình luận (0)
Đánh giá (1)
ĐÁNH GIÁ TRUNG BÌNH
5/5
(
1 Nhận xét)
Bản vẽ rất tốt (1)
Bản vẽ tốt (0)
Bản vẽ rất hay (0)
Bản vẽ hay (0)
Bình thường (0)
Bản vẽ rất tốt
Đã đăng bản vẽ này
Bản vẽ rất tốt và phù hợp để tham khảo