MÃ BẢN VẼ
61985
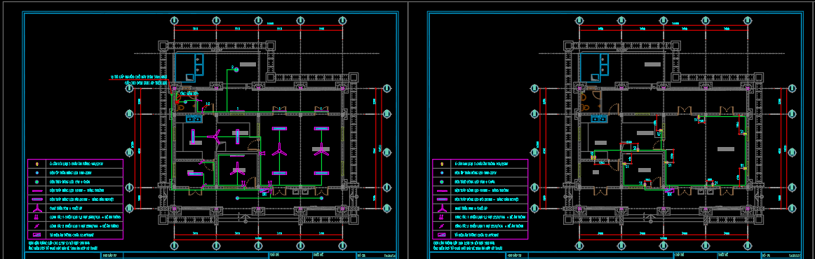
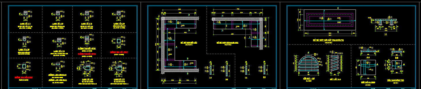
Full file bản vẽ kiến trúc, kết cấu, điện, nước công trình nhà ăn cơ quan 10x14m
Hồ sơ mẫu thi công công trình nhà ăn cơ quan đầy đủ kiến trúc, kết cấu, điện, nước
Ngày đăng: 16/8/2025
File download:
Nha an 10x14m.rar
Dung lượng file:
19.6 MB
Phong cách: Hiện đại
Kích thước: ...
CÔNG CỤ THIẾT KẾ:

Autocad

Sketchup

3D Max

Revit

Khác...
CÁC HẠNG MỤC CỦA BẢN VẼ:

Kiến trúc

Kết cấu

Điện

Nước

PCCC

Phối cảnh

Dự toán

Tài liệu

Khác...
NGƯỜI ĐĂNG
Bản vẽ
25
Bộ sưu tập
0
Đánh giá (77)
5/5
Ngày tham gia
11/6/2025
Mô tả chi tiết
nhà ăn cơ quan 1 tầng, diện tích thiết kế 10x14m, danh mục full các khu vực phòng ăn, bếp nấu, phòng soạn chia, khu gia công, phòng quản lý, phòng kho...
full file bản vẽ kiến trúc, kết cấu, điện, nước.
Bình luận (0)
Đánh giá (1)
ĐÁNH GIÁ TRUNG BÌNH
5/5
(
1 Nhận xét)
Bản vẽ rất tốt (1)
Bản vẽ tốt (0)
Bản vẽ rất hay (0)
Bản vẽ hay (0)
Bình thường (0)
Bản vẽ rất tốt
Đã đăng bản vẽ này
Bản vẽ thiết tốt thích hợp để tham khảo